Курсовая работа: Проектирование и расчет фундаментов мелкого и глубокого заложения одноэтажного производственного здания
Курсовая работа: Проектирование и расчет фундаментов мелкого и глубокого заложения одноэтажного производственного здания
КОСТРОМСКАЯ
ГОСУДАРСТВЕННАЯ
СЕЛЬСКОХОЗЯЙСТВЕННАЯ
АКАДЕМИЯ
Кафедра «Строительные
конструкции»
Курсовой проект
на тему «Проектирование и расчет
фундаментов мелкого и глубокого
заложения одноэтажного
производственного здания»
Выполнил :
студент 4 курса 1
группы
архитектурно-строительного факультета
Виноградов В. С.
Приняла: Примакина Е. И.
Кострома 2003 г.
Оглавление.
1. Краткая характеристика здания
2. Основные сведения о строительной площадке
3. Оценка свойств отдельных пластов грунта
4. Оценка геологического строения площадки
5. Расчет фундаментов мелкого заложения:
расчет первого сечения
расчет второго сечения
6. Расчет фундаментов глубокого заложения:
расчет первого сечения
расчет второго сечения
7. Выбор сваебойного оборудования
8. Устройство котлована
9. Устройство водопонижения
10. Список используемой литературы
1.Краткая характеристика
проектируемого здания.
Ø
Назначение и основные особенности
проектируемого здания.
Данное
здание является промышленным. Оно имеет размеры в плане в осях 96x120
м. Количество этажей в данном здании 1. Полная высота здания от спланированной
отметки до карниза 13 м. Условная отметка чистого пола первого этажа 0.000 м
выше спланированной отметки земли на 0.15 м.
Ø
Конструктивное решение здания.
Данное
здание с полным каркасом, несущие стены – навесные панели. Толщина наружных
стен 300 мм. Несущими конструкциями являются колонны. Фундамент в данном здании
является нагруженным с эксцентриситетом.
2.Основные сведения о строительной площадке.
Местные
условия строительной площадки.
Абсолютные
отметки поверхности строительной площадки: 142.99 м, 143.95 м, 144.91 м. Рельеф
площадки ровный, спокойный и имеет уклон 1.8 %.
Геологическое
строение площадки.
Геологическое
строение площадки характеризуется геологическими выработками – скважинами №1,
№2, №3 из которых с глубины 1.5 м, 3.5 м, 8 м, 13.5 м, отобраны образцы грунта
для лабораторных испытаний.
3.Оценка свойств отдельных пластов грунта
1слой - насыпь.
2слой - пылевато-глинистый грунт.
Определяем
число пластичности по формуле
Ip=WL-Wp=23.5-17.0=6.5 по таблице 1.8 [1]-
грунт супесь
т.к. 1 < Ip £ 7
WL – влажность на границе текучести;
Wp – влажность на границе пластичности.
Определяем
показатель текучести:
IL=(W-Wp)/Ip=(15.4-17)/6.5=
-0.246
В
соответствии с табл. 1.9 [1] тип грунта супесь, разновидность которого по показателю
текучести - твердая т.к. IL<0.
По степени
влажности Sr определяем водонасыщенность грунта.
т/м3
e=(2.68-1.716)/1.716=0.56
- коэффициент пористости
грунта.
Sr=0.154*2.68/(0.56*1)=0.737 - грунт влажный, т.к. 0.5< Sr £0.8 по табл. 1.6 [1].
W - природная влажность грунта;
r-
природная плотность грунта т/м3;
rs -
плотность частиц т/м3;
rd
- плотность сухого грунта т/м3;
rw=1
т/м3 - плотность воды.
Для
предварительной оценки набухаемости грунта находим показатель просадочности.
Этим свойством обладают только пылевато-глинистые грунты. Грунт считается
просадочным, если Sr<0.8
и показатель просадочности находится в диапозоне:




П=(0.616-0.56)/(1+0.56)=0.036
eL- коэффициент, соответствующий
влажности на границе текучести.
e - коэффициент пористости природного
грунта.
Грунт
считается набухающим, если П>0.3(п.10.2.1[1]).
Вывод:
грунт- супесь твердая, влажная, непросадочная, ненабухающая, малопучинистая.
3 слой -пылевато-глинистый грунт.
Определяем
число пластичности по формуле
Ip=WL-Wp=34.3-18.0=16.3 по таблице 1.8 [1] –
грунт суглинок т.к. 7 < Ip £ 17
Определяем
показатель текучести:
IL=(W-Wp)/Ip=(30-18)/16.3=
0.736
В
соответствий с табл. 1.9 [1] тип грунта суглинок, разновидность
которого по
показателю текучести - мягкопластичный т.к. 0.5 < IL £ 0.75
Oпределяем коэфициент пористости грунта.
т/м3
e=(2.54-1.4769)/1.4769=0.7198
Определяем
степень влажности грунта. По степени влажности определяем водонасыщенность
грунта.

Sr=0.3*2.54/(0.7198*1)=1.058 - грунт насыщенный водой т.к. Sr >0.8 по табл. 1.6 [1].
Находим
показатель просадочности.

П=(0.66-0.7198)/(1+0.7198)=
-0.035
В
соответствие с п.10.2.1[1] – грунт не просадочен.
Вывод:
грунт- суглинок мягкопластичный, насыщенный водой, не просадочный, не
набухаемый, сильнопучинистый.
4 слой - пылевато-глинистый грунт.
Определяем
число пластичности по формуле
Ip=WL-Wp=40.8-19.8=21 по таблице 1.8 [1] –
грунт глина т.к. Ip
>17
Определяем
показатель текучести:
IL=(W-Wp)/Ip=(26.3-19.8)/21=
0.3095
В
соответствий с табл. 1.9 [1] тип грунта глина, разновидность, которой по показателю
текучести – тугопластичная т.к. 0.25 < IL £ 0.5
Oпределяем коэффициент пористости грунта.
т/м3
e=(2.47-1.59)/1.59=0.55
Определяем
степень влажности грунта. По степени влажности определяем водонасыщенность
грунта.

Sr=0.263*2.47/(0.55*1)=1.181 - грунт насыщенный водой т.к. Sr >0.8 по табл. 1.6 [1].
Находим
показатель просадочности.

П=(0.82-0.55)/(1+0.55)=0.17
В
соответствие с п.10.2.1[1] – грунт не просадочен.
Вывод:
грунт- глина тугопластичная, насышенная водой, не просадочная, не набухаемая,
среднепучинистая.
5 слой - песок
Для
определения типа грунта по крупности частиц необходимо суммировать данные
процентного содержания частиц по табл.1.5 [1]
Частиц
>2 мм - 12.3% в то время как для гравелистого песка частиц должно быть более
25%.
Частиц 2 -
0.5 мм - 12.3+31.9=44.2% - в то время как для крупного песка частиц должно быть
более 50%.
Частиц 0.5 -
0.25 мм - 12.3+31.9+22.8=67% >50% - находят песок средней крупности.
Определяем
коэффициент пористости грунта.
т/м3
e=(2.74-1.645)/1.645=0.67
– по e - средней плотности т.к. 0.55<0.67<0.7 по табл. 1.7 [1].
Определяем
степень влажности:

Sr=0.24*2.74/(0.67*1)=0.988 – грунт насыщенный водой т.к. Sr >0.8 по табл. 1.16 [1].
Вывод:
грунт- песок средней крупности, средней плотности, насышенный водой, практически
непучинистый.
Сводная таблица физических свойств
грунтов.
| Физические хар-ки |
Наименование инженерно-геолог. элементов |
супесь твердая, влажная, непросадочная, ненабухающая, малопучинистая. |
суглинок мягкопластичный, насыщенный
водой, не просадочный, не набухаемый, сильнопучинистый. |
глина тугопластичная, насышенная водой, не просадочная, не
набухаемая, среднепучинистая. |
Песок средней крупности, средней плотности, насышенный
водой, практически непучинистый. |
|
1.r , т/м3
|
1.98 |
1.92 |
2.01 |
2.04 |
|
2. r d , т/м3
|
1.716 |
1.4769 |
1.59 |
1.645 |
|
3. r s , т/м3
|
2.68 |
2.54 |
2.47 |
2.74 |
|
4.g , кН/м3
|
19.8 |
19.2 |
20.1 |
20.4 |
|
5. gd , кН/м3
|
17.16 |
14.769 |
15.9 |
16.45 |
|
6. gs , кН/м3
|
26.8 |
25.4 |
24.7 |
27.4 |
| 7.W, % |
15.4 |
30 |
26.3 |
24 |
|
8.Wp , %
|
17.0 |
18 |
19.8 |
- |
|
9. WL , %
|
23.5 |
34.3 |
40.8 |
- |
| 10.e |
0.56 |
0.7198 |
0.55 |
0.67 |
|
11.Sr
|
0.737 |
1.058 |
1.181 |
0.988 |
|
12.Ip
|
6.5 |
16.3 |
21 |
- |
|
13.IL
|
-0.246 |
0.736 |
0.3095 |
- |
Сводная таблица механических
характеристик грунтов.
| Мехаческие хар-ки |
Наименование инженерно-геолог. Элементов |
супесь твердая, влажная, непросадочная, ненабухающая, малопучинистая. |
суглинок мягкопластичный, насыщенный
водой, не просадочный, не набухаемый, сильнопучинистый. |
глина тугопластичная, насышенная водой, не просадочная, не
набухаемая, среднепучинистая. |
песок средней крупности, средней плотности, насышенный
водой, практически непучинистый. |
| - деформационные- |
| 14.E ,
Мпа |
28.86 |
14.54 |
17.756 |
24.892 |
|
15.mo по комп. Исп. Мпа-1
|
0.03 |
0.073 |
- |
- |
| - прочностные- |
|
16.сII (уд.сцеп.) кПа
|
12 |
18 |
55 |
- |
|
17.jII (уг.вн.трен.) град
|
23 |
16 |
18 |
30 |
|
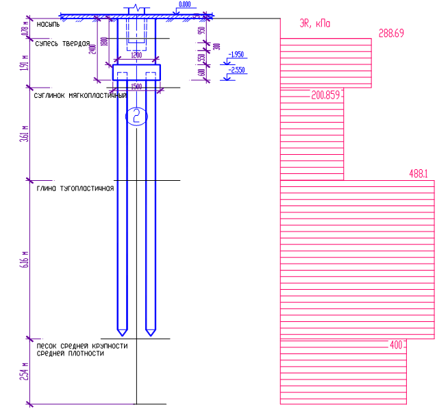
18.Ro (ус.рас.соп.) кПа
|
288.69 |
200.859 |
488.1 |
400 |
4. Оценка геологического строения площадки.
Грунт
строительной площадки имеет слоистое напластование, с залеганием слоев, близких
к горизонтальным и выдержанным по мощности. В толще грунтов залегают подземные
воды.
Геологические
изыскания производились в июле.
Абсолютные
отметки подземных вод:
Скв.N 1 –
140.30 м
Скв.N 2 –
141.90 м
Скв.N 3 –
143.00 м
Уровень
грунтовых вод 2.69, 2.05, 1.91 м, т.е. в неблагоприятный период фундаменты
здания могут оказатся в подтоплении, в таком случае необходимо будет предусмотреть
усиленную гидроизоляцию и подсыпку из непучинистых материалов.
5.Расчет фундамента мелкого
заложения.
Расчет первого сечения под колонну среднего ряда.
Определяем глубину заложения фундаментов.
По конструктивным: особенностям
здания и сечению колонны 1400х500 подбираем тип подколонника Д с
сечением 2100х1200, с размерами стакана 1500х600 по низу, 1650х650 по верху и
глубиной 1250.
По климатическим: нормативная глубина промерзания для данного района
строительства 1.8 м – определена по карте рис. 5.15 [1].
Определим
расчетную глубину промерзания
df=dfn·kn; kn =0.56 (т.
5.9 [1]) df=1.8·0.56=1.008 м. d ³ 1.008 м.
По геологическим: в качестве
естественного основания принимаем 2 слой супесь твердая, влажная,
непросадочная, ненабухающая, малопучинистая. d ³ 0.78 м.
По гидрогеологическим: d < 2.69 м.
Окончательная
глубина заложения фундамента 2.4 м от спланированной отметки земли. Рабочим
слоем является грунт – супесь твердая, подстилающими грунтами – суглинок, глина
и песок.
Предварительно определяем размеры фундамента условно
считая его центрально нагруженным квадратной формы.
кН
кПа
кН/м3
м

|
g=2.01 т/м3
cII=55 кПа
jII=18o
|
|
|
g=1.92 т/м3
cII=18 кПа
jII=16o
|
|
|
g=1.98 т/м3
cII=12 кПа
jII=23o
|
|
Учтем прямоугольность фундамента
м
м
принимаем ФД11-3
м
м
м3
Учитываем что фундамент внецентренно нагружен и
определяем эксцентриситет.
кНм
кН
кН/м3
Приводим нагрузку к подошве
фундамента
Вес фундамента
кН
Объем грунта
м3
Момент у подошвы фундамента
кНм
найдем средний удельный вес грунта выше подошвы
фундамента

кН/м3
-вес грунта
кН
м
определим относительный
эксцентриситет и сравним его с допустимым

2 – я комбинация
кНм
кН

кН
м


Определяем вид эпюры контактных давлений. Эпюра имеет
трапециевидную форму т.к.

кПа
кПа
q – нагрузка от оборудования, людей,
складируемых материалов и изделий. Согласно п.3.2 [4] принимается не менее 2
кПа.
Проверка под углом подошвы фундамента

т/м3
– удельный вес грунтов залегающих выше подошвы фундамента.

т/м3
– удельный вес грунтов залегающих ниже подошвы фундамента на глубину 0.5b.
кПа
м 
gс1, gс2 –
коэф. условий работы таб.5.11[1].
к – коэф. зависящий от того как были определены с и j.
Мg,
Мс и Мq коэф. принимаемые по
таб.5.12[1].
kz – коэф. зависящий
от b.
d1 –
глубина заложения фундаментов.
кПа
кПа

Следовательно проверка прочности основания выполняется
т.е. размеры фундамента подобраны верно.
Расчет по
несущей способности основания.
,
где F=2734.231 кН – расчетная нагрузка на
основание; Fu – сила предельного сопротивления
основания; gс – коэф. условий работы принимаемый
для глинистых грунтов – 0.9; gn
– коэф. надежности по назначению сооружений принимаемый для сооружения II класса равным 1.15.
Fu=b`×l`×(Ng×xg×l`×gI+Nq×xq×gI`×d+Nc×xc×cI),
где b`=b-2×eb=3-2×0.086=2.828 м – приведенные ширина и длина фундамента
l`=l-2×el=3.6-2×0.2=3.2 м
eb, el – эксцентриситеты приложения
нагрузок.
Ng, Nq, Nc – безразмерные коэф. определяемые по
таб.5.28[1]
Ng=5.87; Nq=10.66;
Nc=20.72
xg=1-0.25/h=1-0.25/(l`/b`)=1-0.25/(3.2/2.828)=0.779 – коэф.
формы подошвы фундамента
xq=1+1.5/h=1+1.5/1.13=2.33
xc=1+0.3/h=1+0.3/1.13=1.27
Fu=2.828×3.2×(5.87×0.779×3.2×11.052+10.66×2.33×18.5×2.4+20.72×1.27×12)=14301.012 кН
14301.012×0.9/1.15=11192.096 кН>2734.231 кН,
т.е. несущая способность основания при принятых размерах фундамента обеспечена.
Расчет осадки основания методом эквивалентного слоя.
Построим эszp и
эszg

кПа
szgi =
Sgi×hi –
где gi -
удельный вес грунта(при наличии подземных вод определяется с учетом
взвешивающего действия воды), hi-мощность слоя.
с учетом взвешивающего действия воды.
кПа
кПа
кПа
кПа
кПа
кПа

кПа 
Aw=f(l/b;n) - таб.5.6[5]
м
м
Определим модуль деформации
2 слой-супесь

кПа
кПа
кПа
кПа
кПа
кПа



кПа
3 слой-суглинок
кПа
кПа
кПа
кПа
кПа
кПа



кПа
4 слой-глина
м 
кПа
кПа
кПа
кПа
кПа


кПа
м
м
кПа
d – диаметр
штампа d=0.277 м, w=0.79 – коэффициент,
b, n – т. 1.15 [1]
м
м
м
м
м
м
h – мощность сжимаемого слоя, z- расстояние от середины сжим. слоя до конца распространения осадки.


м
Что гораздо меньше предельной 8 см таб.5.26[1].
Проверяем прочность подстилающего слоя.
кПа
кПа
кПа
м
кН/м3
кН/м3
кПа

м
кПа
условие
выполняется
Расчет второго сечения под колонну крайнего ряда.

Первая комбинация
Предварительно
определяем размеры фундамента условно считая его центрально нагруженным
квадратной формы.
кН
кПа
кН/м3
м
м
Учтем прямоугольность фундамента
м
принимаем ФД11-3
м
м
м3
Учитываем что фундамент внецентренно нагружен и
определяем эксцентриситет.
кНм
кН
кН/м3
кН
м3
кНм
кН/м3
кН
кН
м


Вторая
комбинация
кНм
кН
кНм
м

Определяем вид эпюры контактных давлений.
кПа
кПа
Проверка под углом подошвы фундамента

кПа

м
кПа
кПа

Следовательно проверка прочности основания выполняется
т.е. размеры фундамента подобраны верно.
Расчет осадки основания методом эквивалентного слоя.
Построим эszp и
эszg

кПа


кПа
м
м
м
м
м
м
м
м
кПа
кПа
кПа



м
Что гораздо меньше предельной 8 см таб.5.26[1].
Проверяем прочность подстилающего слоя.

кПа
кПа
кПа

м
кН/м3
кН/м3
кПа

м
кПа

Условие
выполняется т.е. размеры фундамента подобраны верно.
6. Расчет фундамента глубокого заложения.
Расчет фундамента под первое сечение.
Проектируем
свайный фундамент с забивными железобетонными сваями и монолитным ростверком.
Глубину заложения верха ростверка принимаем из конструктивных соображений 1.8
м. Высоту ростверка принимаем равной 0.6 м. Величина заделки сваи в ростверк
принимаем 0.3 м. В качестве естественного основания принимаем глину тугопластичную.
Предварительно
принимаем сваю С10 – 30 длиной 10 м квадратного сечения 0.3х0.3 м. Определим
несущую способность одной сваи
кН
кНм
кН
кНм
кН
кН/м3
м
длина сваи
длина сваи без учета
защемления в ростверке
несущая способность
одной сваи
м
м
м
м
м
м
м
м
м
м
м
м
кПа
кПа
кПа
кПа
кПа
кПа 
м2
м
кПа
м
кН
hi –
мощность итого слоя.
zi –
глубина заложения итого слоя с поверхности до середины слоя.
По
т. 9.1 [2] R кПа.
По
т. 9.2 [2] fi кПа
По
т. 9.3 [2] gc = 1, gсR = 1, gcf = 1,
u – периметр
одной сваи.
А
– площадь поперечного сечения.
Определяем
допустимую расчетную нагрузку на одну сваю
PCB=766.105 кН gg=1
- коэф. надежности по грунту.
Определяем
необходимое число свай
n=3.508 шт.
принимаем
шт.

Определим нагрузку приходящуюся на каждую сваю во
внецентренно нагруженном фундаменте.
кН - вес
подколонника;
кН – вес ростверка;
- коэф. надежности по
нагрузке;
м3
м3
м3
м3
кН/м3
кН
кН
кНм
кНм
м
м –расстояния от центра
сваи до осей соответственно.
кН
кН
1.2×PCB=919.326
кН > Pmax
Неравенства выполняются, следовательно проверка
условий работы крайних свай показала, что свайный фундамент запроектирован
рационально.
Свайный фундамент с висячими сваями условно принимают
за массивный жесткий фундамент глубокого заложения, контур которого ограничен
размерами ростверка, свай и некоторым объемом грунта.
град.
кН
м
м
м3
м3
кН/м3
кН
кН
кНм
кНм

кПа
кПа

кН/м3
кН/м3
кПа

кПа


Неравенства выполняются, значит размеры фундамента
подобраны верно.
Расчет осадки основания
кПа
кПа

кПа
м
м

Определим модуль деформации.
4 слой-глина
кПа;
кПа;
кПа;
кПа
;
м; 
кПа
кПа


м;
м
кПа
5 слой-песок
;
м;

кПа;
кПа;
кПа;
кПа
кПа
кПа


м;
м
кПа
м;
м;
м;
м
;
;
кПа;
кПа
; 

м
Что гораздо меньше
предельной 8 см таб.5.26[1].
Расчет фундамента под второе сечение.
Проектируем
свайный фундамент с забивными железобетонными сваями и монолитным ростверком.
Глубину заложения верха ростверка принимаем из конструктивных соображений 1.8
м. Высоту ростверка принимаем равной 0.6 м. Величина заделки сваи в ростверк
принимаем 0.3 м. В качестве естественного основания принимаем глину тугопластичную.
Предварительно
принимаем сваю С8 – 30 длиной 8 м квадратного сечения 0.3х0.3 м. Определим
несущую способность одной сваи.
кН;
кНм;
кН;
кНм;
кН;
кН/м3
м
м

м;
м;
м;
м; 
м;
м;
м;
м;
м;
кПа;
кПа;
кПа;
кПа;
кПа
;
;
;
м2
м
кПа
м
кН
Определяем допустимую расчетную
нагрузку на одну сваю
PCB=617.696 кН
Определяем необходимое число свай.
n=2.3 шт.
принимаем
шт.

Определим нагрузку приходящуюся на каждую сваю во
внецентренно нагруженном фундаменте.
кН
кН
;
; 
м3
м3
м3
м3
кН/м3
кН
кН
кНм
кНм
м
м
кН
кН
; 1.2×PCB=741.24 кН > Pmax
Неравенства выполняются, следовательно проверка
условий работы крайних свай показала, что свайный фундамент запроектирован рационально.
Свайный фундамент с висячими сваями условно принимают
за массивный жесткий фундамент глубокого заложения, контур которого ограничен
размерами ростверка, свай и некоторым объемом грунта.
град. 
кН
м
м
м3
м3
кН/м3
кН
кН
кНм
кНм

кПа
кПа
кН/м3
кН/м3
;
кПа;
;
; 
;
; 
кПа
кПа

Расчет осадки основания



м
м
м
м
м
м
кПа
кПа

м
Что гораздо меньше
предельной 8 см таб.5.26[1].
7. Выбор оборудования
для забивки свай.
Определяем минимальную энергию удара по формуле 8.21
[1].
Дж
а=25 Дж/кН – коэф.;
Fv – расчетная нагрузка, допускаемая на одну сваю.
Из т. 9.5 [5] выбираем дизель молот С – 995 с энергией
удара 33 кДж.
Расчет отказа сваи.
формула 9.12 [5]
h = 1500 кН/м2 стр. 207 [5], M = 1 стр. 207
[5],
A =
0.09 м2, площадь поперечного сечения сваи
m1 = 2600 кг, масса молота
m2 = 2250 кг, масса сваи
m3 = 1250 кг, масса ударной части
E2 = 0.2 коэффициент восстановления удара
м
Что
больше допустимого 0.002 м, т.е. сваебойное оборудование подобрано верно.
8. Устройство
котлована.
Глубина котлована 2.4 м. При устройстве котлована
запроектированы естественные откосы с уклоном 1:1. Размеры котлована понизу –
100.2х123.6 м2, по верху – 105х128.4 м2. На основании
стр.26[10] и гл.7 [6] подобрана следующая землеройная машина:
Экскаватор с гидравлическим приводом при работе
обратной лопатой ЭО-4121 мощностью 95 кВт, объемом ковша 1 м3.
9. Защита котлована от подземных вод.
Водопонижение
осуществляем с помощью открытого водоотлива и производим в течение всего
времени устройства фундаментов и других подземных частей здания, расположенных
ниже уровня подземных вод, до тех пор, пока нагрузки от конструкции не превысят
возникающее гидростатическое давление и не обеспечат устойчивость подземных
сооружений от всплывания.
Открытый
водоотлив осуществляется прямо из котлована насосами. Для сохранения природного
сложения грунтов оно должно вестись с опережением земляных работ в определенной
последовательности. Вода откачивается из приямков, куда она поступает из
канавок глубиной 0.3-0.5 м, расположенных по периметру котлована с уклоном i=0.01-0.02 в сторону приямков.
Приямки устраивают не ближе 1 метра от граней фундамента. По мере разработки
котлована приямки заглубляются вместе с канавками. Приямки заглубляются не
менее чем на 0.7-1 м, и уровень воды в них поддерживается на 0.3-0.5 м ниже дна
вырытого котлована.
10. Список
используемой литературы.
1.
Справочник проектировщика «Основания,фундаменты и подземные сооружения ». Под
редакцией Е.А. Сорочана, Ю.Г. Трофименкова. М.,1985.
нова,
М., Стройиздат, 1984.
2.
СНиП 2.02.01 – 83 «Основания зданий и сооружений», М., 1985.
3.
СНиП 2.02.03 – 85 «Свайные фундаменты», М., 1986.
4.
СНиП 2.01.07 – 85 «Нагрузки и воздействия», М., 1988.
5.
Н.А. Цытович «Механика грунтов. Краткий курс», М., 1983.
6.
В.А. Веселов «Проектирование оснований и фундаментов» М.,1990.
7.
Руководство по выбору проектных решений фундаментов НИИОСП им. Н.М. Герсева
8.
Е.Г. Кутухтин «Конструкции промышленных и сельскохозяйственных зданий и сооружений»,
М., 1995.
9.
Примакина Е. И. «Методические указания на расчет оснований под ФМЗ и свайные»
10.
Цыбакин С.В. «Методические указания на производство земляных работ»