Курсовая работа: Организация работы холодного цеха ресторана первого класса на 75 мест
Курсовая работа: Организация работы холодного цеха ресторана первого класса на 75 мест
Содержание
1.
Характеристика
предприятия
2.
Характеристика
холодного цеха
3.
Расчет
загрузки торгового зала
4.
Определение
количества блюд для реализации
5.
Составление
меню
6.
Составление
графика реализации блюд
7.
Расчет
потребленного сырья
8.
Подбор
оборудования
9.
Расчет
общей и занятой площади
10.
Подбор
инструментов и инвентаря
11.
Подбор
рабочей силы и составление графика выхода на работу
12.
План
цеха с расстановкой оборудования
Список
использованных источников
1.
Характеристика предприятия
Ресторан
– предприятие общественного питания с широким ассортиментом блюд сложного
приготовления, включая заказные и фирменные, винно-водочные, табачные и
кондитерские изделия, с повышенным уровнем обслуживания в сочетании с
организацией досуга. Обслуживание потребителей осуществляется метрдотелями,
официантами.
Ресторан «первого класса» - гармоничность, комфортность и выбор услуг, разнообразный
ассортимент фирменных блюд, изделий и напитков сложного приготовления.
Обязательные требования:
·
вывеска
световая с элементами оформления;
·
оформление
залов и помещений с использованием оригинальных декоративных элементов;
·
наличие
банкетного зала и отдельных кабин;
·
система
вентиляции, обеспечивающая допустимые параметры температуры и влажности;
·
мебель
стандартная, соответствующая интерьеру помещений;
·
столы
с полиэфирным покрытием;
·
кресла
полумягкие в обеденном зале;
·
металлическая
посуда и столовые приборы из нержавеющей стали;
·
полуфарфоровая,
фаянсовая посуда;
·
сортовая
стеклянная посуда без рисунка;
·
скатерти
фирменные белые или цветные (допускается замена индивидуальными салфетками);
·
салфетки
полотняные индивидуального пользования;
·
меню
и прейскурант с эмблемой предприятия на национальном и русском языках;
·
обложка
меню с эмблемой или рисунком;
·
разнообразный
ассортимент фирменных блюд, изделий и напитков сложного приготовления;
·
широкий
ассортимент кондитерских изделий промышленного производства, фруктов, вино -
водочных, табачных изделий, фруктовых и минеральных вод;
·
обслуживание
официантами, барменами, метрдотелями;
·
наличие
у обслуживающего персонала форменной одежды с эмблемой или без и обуви;
·
любые
виды музыкального обслуживания (с использованием музыкальных автоматов, звуко-,
видеовоспроизводящей аппаратуры).
Наш
ресторан работает с 12—до 01 ч. без перерыва на обед.
2.
Характеристика холодного цеха
Холодные
цехи организуются на предприятиях с цеховой структурой производства.
Холодные
цехи предназначены для приготовления, порционирования и оформления холодных
блюд и закусок. Ассортимент холодных блюд зависит от типа предприятия, его
класса. Ресторан 1 класса предполагает ежедневно не менее 10 блюд. В
ассортимент продукции холодного цеха входят холодные закуски, гастрономические
изделия (мясные, рыбные), холодные блюда (отварные, жареные, фаршированные,
заливные и др.), молочнокислая продукция, а также холодные сладкие блюда (желе,
муссы, самбуки, кисели, компоты и др.), холодные напитки, холодные супы.
Производственная
программа холодного цеха составляется на основании ассортимента блюд,
реализуемых через торговый зал, магазины кулинарии, а также отправляемых в
буфеты и другие филиалы.
Холодный
цех располагается, как правило, в одном из наиболее светлых помещений с окнами,
выходящими на север или на северо-запад. При планировке цеха необходимо
предусматривать удобную связь с горячим цехом, где производится тепловая
обработка продуктов, необходимых для приготовления холодных блюд, а также с
раздачей и моечной столовой посуды.
При
организации холодного цеха необходимо учитывать его особенности: продукция цеха
после изготовления и порционирования не подвергается вторично тепловой
обработке, поэтому необходимо строго соблюдать санитарные правила при
организации производственного процесса, а поварам – правила личной гигиены;
холодные блюда должны изготовляться в таком количестве, которое может быть
реализовано в короткий срок. Салаты и винегреты в незаправленном виде хранят в
холодильных шкафах при температуре 2-6оС не более 6 часов.
Заправлять салаты и винегреты следует непосредственно перед отпуском, не
допускаются к реализации изделия, оставшиеся от предыдущего дня: салаты,
винегреты, студни, заливные блюда и другие особо скоропортящиеся холодные
блюда, а также компоты и напитки собственного производства.
Холодные
блюда отпускаются после охлаждения в холодильных шкафах и должны иметь
температуру 10-14оС, поэтому в цехе предусмотрено достаточное
количество холодильного оборудования.
Учитывая,
что в холодном цехе изготовляется продукция из продуктов, прошедших тепловую
обработку, и из продуктов без дополнительной обработки, необходимо четко
разграничивать производство блюд из сырых и вареных овощей, из рыбы и мяса. В
небольших предприятиях организуются универсальные рабочие места, на которых
последовательно готовят холодные блюда в соответствии с производственной
программой, в крупных холодных цехах организуются специализированные рабочие
места.
В
теплое время в холодном цехе готовят холодные супы (окрошки, свекольники,
ботвиньи, фруктовые супы).
Из
сладких блюд в холодном цехе готовят компоты, кисели, желе, муссы, самбуки и
др.
На
всех этапах изготовления холодных блюд не должно быть никаких отступлений от
соблюдения работниками правил личной гигиены.
Это
накладывает на поваров большую ответственность за строгое соблюдение санитарных
правил при изготовлении холодных блюд.
Для
приготовления холодных блюд должно быть выделено отдельное помещение, по
возможности наиболее удаленное от горячего цеха и оборудованное холодильником.
В холодном цехе недопустимо устанавливать какие-либо тепловые аппараты. Варка
мясных продуктов должна производиться в горячем цехе. В идеальной чистоте
должно содержаться все оборудование — посуда, инвентарь, инструментарий. Для
этого их ежедневно после работы необходимо мыть горячей водой с содой, затем
ошпаривать кипятком и просушивать.
В
холодном цехе так же, как и в заготовительном, должны быть отдельные деревянные
доски для нарезки мяса, рыбы, сельдей и овощей с соответствующими буквенными
обозначениями. Для овощей следует иметь три доски: для вареных овощей — картофеля,
свеклы, моркови; для квашеных и маринованных овощей, для свежих овощей и
зелени.
Особенно
тщательно надо следить за обработкой свежих, вареных, квашеных и маринованных
овощей на раздельных досках при заготовке их в виде полуфабрикатов, которые предполагается
некоторое время хранить.
Эти
условия следует соблюдать даже в том случае, если хранение их будет
производиться на холоде, так как микроорганизмы, особенно попавшие с квашеных
овощей на вареные, даже при низких температурах очень быстро размножаются.
Вместо
широко практикуемого в настоящее время приготовления салатов и винегретов из
овощей, предварительно сваренных в коже, рекомендуется изготавливать их из
овощей, сваренных в очищенном и нарезанном виде.
Предложенная
технология имеет и другие преимущества. При припускании овощей потери
водорастворимых питательных веществ сводятся к минимуму. Небольшое количество
получающегося при этом отвара используется для заправки блюд.
Очень
важное значение имеет температура продуктов, используемых при изготовлении
холодных блюд. Все продукты должны быть предварительно охлаждены до температуры
8—10°. Нельзя допускать смешивания охлажденных продуктов с теплыми.
Соблюдение
установленного температурного режима и сроков хранения готовых блюд и
полуфабрикатов — также важная мера для повышения их санитарного состояния.
3.
Расчет загрузки торгового зала
Согласно учебнику Аграновского
«Основы проектирования предприятий общественного питания» таблице 14
оборачиваемость места за расчет количества посетителей торгового зала
определяется по формуле:
N=P*C*X/100,
Где: N - количество
потребителей за час,
P - количество мест в зале,
C - процент загрузки торгового зала (согласно данным
X – оборот одного места за час.
Здесь
же рассчитаем коэффициент перерасчета блюд, определяемый по формуле.
K=Nч/Nдн,
где Nч - количество
посетителей за час, Nдн
–количество посетителей за день.
Таблица 1.
| Часы работы |
Оборот одного места за час |
Процент загрузки торгового зала |
Количество потребителей
за час |
Коэффициент перерасчета блюд |
| 12-13 |
1,5 |
60 |
67 |
0,09 |
| 13-14 |
1,5 |
80 |
90 |
0,12 |
| 14-15 |
1,5 |
80 |
90 |
0,12 |
| 15-16 |
1,5 |
80 |
90 |
0,12 |
| 16-17 |
1,5 |
60 |
67 |
0,09 |
| 17-18 |
1,0 |
50 |
37 |
0,05 |
| 18-19 |
1,0 |
50 |
37 |
0,05 |
| 19-20 |
0,8 |
90 |
54 |
0,07 |
| 20-21 |
0,8 |
100 |
60 |
0,08 |
| 21-22 |
0,6 |
100 |
45 |
0,06 |
| 22-23 |
0,6 |
100 |
45 |
0,06 |
| 23-24 |
0,4 |
80 |
24 |
0,03 |
| 24-01 |
0,4 |
80 |
24 |
0,03 |
| Итого посетителей за день |
- |
- |
730 |
|
N 12-13= 75*1,5*60/100 = 67
N 13-14= 75*1,5*80/100 = 90
N14-15 = 75*1,5*80/100 = 90
N 15-16= 75*1,5*80/100 = 90
N 16-17= 75*1,5*60/100 = 67
N 17-18= 75*1,0*50/100 = 37
N 18-19= 75*1,0*50/100 = 37
N 19-20= 75*0,8*90/100 = 54
N 20-21= 75*0,8*100/100 = 60
N 21-22= 75*0,6*100/100 = 45
N 22-23= 75*0,6*100/100 = 45
N 23-24= 75*0,4*80/100 = 24
N 24-25= 75*0,4*80/100 = 24
Оборачиваемость
места составит: 730/75 = 9,73~10
4.
Определение количества блюд,
реализуемых холодным цехом
После
определения числа питающихся разрабатываем производственную программу
предприятия (составляем меню, устанавливаем количество блюд и напитков каждого
наименования).
Расчет
блюд, реализуемых за день, производится по формуле:
nд
= Nд*m,
где
Nд – число
потребителей в течение дня, m
– коэффициент потребления блюд, указывающий, какое количество блюд в среднем
приходится на одного человека на предприятии (состоит из коэффициента
потребления отдельных видов обеденной продукции собственного производства —
супов, холодных закусок, вторых блюд и сладких блюд).
Для
ресторана коэффициент потребления составляет 3,5.
Таким
образом, nд =
730*3,5 = 2555
Далее
рассчитываем количество блюд в каждой категории, используя процентное
соотношение к общему количеству блюд, реализуемых за день, и процентное
соотношение в группе (за основу возьмем приложение 5 таблица 2 учебника
Т.Т.Никуленковой «Проектирование предприятий общественного питания», ресторан
городской):
Холодные
блюда: 45 %, 2555/100*45 = 1150,
Из
них:
Рыбные
25%, 1150/100*25 = 287 и т.д.
Разбивка блюд по ассортименту сводится в
таблицу.
Таблица
2.
Количество
блюд для реализации (общий список)
| Наименование группы
блюд |
Процент от общего
количества |
Процент от данной
группы |
Количество блюд |
| Холодные блюда: |
45 |
|
1150 |
| Рыбные |
|
25 |
288 |
| Мясные |
|
30 |
345 |
| Салаты |
|
40 |
460 |
| Кисломолочные продукты |
|
5 |
58 |
| Горячие закуски |
5 |
100 |
128 |
| Супы: |
10 |
|
255 |
| Прозрачные |
|
20 |
52 |
| Заправочные |
|
70 |
179 |
| Молочные, сладкие,
холодные |
|
10 |
26 |
| Вторые горячие блюда: |
25 |
|
640 |
| Рыбные |
|
25 |
160 |
| Мясные |
|
50 |
320 |
| Овощные |
|
5 |
32 |
| Крупяные |
|
10 |
64 |
| Яичные, творожные |
|
10 |
64 |
| Сладкие блюда |
15 |
|
382 |
Далее
рассчитываем количество горячих и холодных напитков, мучных кондитерских и
булочных изделий, хлеба, которое определяется по нормам потребления
перечисленной выше продукции на одного человека в день (согласно Никуленковой,
приложение 6, стр.202) на общее количество посетителей:
Горячие
напитки: nгор.нап. =N´mгор.нап.
и т.д.,
Холодные
напитки: nхол.нап.
=N´mхол.нап.
и т.д..
Данные
сводятся в таблицу 3.
Таблица
3.
Количество
напитков для реализации (общий список)
| Наименование изделия |
Единица измерения |
Количество
посетителей за день. |
Норма потребления
блюд. |
Общее количество |
| Горячие напитки, в
том числе: |
л |
730 |
0,05 |
37 |
| чай |
л |
|
20% |
7 |
| кофе |
л |
|
70% |
26 |
| какао |
л |
|
10% |
4 |
| Холодные напитки, в
том числе: |
л |
730 |
0,25 |
183 |
| фруктовая вода |
л |
730 |
0,05 |
37 |
| минеральная вода |
л |
730 |
0,08 |
58 |
| натуральный сок |
л |
730 |
0,02 |
15 |
| напиток собственного
производства |
л |
730 |
0,1 |
73 |
|
Хлеб и хлебобулочные
изделия,
в том числе:
|
г |
730 |
130 |
94900 |
| хлеб ржаной |
г |
730 |
80 |
58400 |
| хлеб пшеничный |
г |
730 |
50 |
36500 |
| Мучные и кондитерские
изделия |
шт |
730 |
0,3 |
219 |
| Конфеты, печенье |
кг |
730 |
0,02 |
15 |
| Фрукты |
кг |
730 |
0,05 |
37 |
|
Винно-водочные
изделия,
в том числе:
|
л |
730 |
0,1 |
73 |
| Водка |
|
730 |
0,05 |
37 |
| Вино, коньяк |
|
730 |
0,05 |
37 |
| Пиво |
л |
730 |
0,025 |
18 |
| Сигареты |
пачка |
730 |
0,1 |
73 |
| Спички |
коробка |
730 |
0,09 |
66 |
5.
Составление плана-меню
Визитной
карточкой предприятия общественного питания называют его меню, т. е. перечень закусок,
блюд, напитков (с указанием цены и выхода), имеющихся в продаже в течение всего
времени работы.
Слово
«меню» происходит от франц. menu
и
означает расписание блюд и напитков на завтрак, обед и ужин, а также рационы
(трехразового питания), составленные в столовых и ресторанах, перечисление блюд
для приемов и другого вида обслуживания (определение «меню» — бланк, карта,
лист бумаги, где печатаются или пишутся названия блюд).
Меню
представляет собой перечень всевозможных блюд, закусок, кулинарных изделий и
напитков, предлагаемых посетителям на данный день. Меню составляют с учетом
ассортиментного минимума и программы работы предприятия. Каждое предприятие
самостоятельно определяет ассортиментный минимум в соответствии со
специализацией, имеющимся сырьем, сезоном года.
В
международной практике принято различать следующие виды меню:
•
а-ля
карт (a
la carte)
— используется в очень дорогих ресторанах с указанием индивидуальной цены на каждое
порционное блюдо;
•
табльдот
(table d’hote)
— предлагает выбор одного или более вариантов каждого блюда по фиксированным
ценам, что особенно удобно в условиях проживания в гостинице;
•
дю
жур (du
jour) — меню дежурных (дневных) блюд;
•
туристское
меню — формируется специально для туристов с акцентом на невысокую цену блюд.
В
ресторанах, кафе и барах в меню указываются наименования блюд, закусок и другой
продукции и цены. На всех других предприятиях кроме наименования блюд и цен
указываются нормы выхода.
Основные
требования к меню:
Ø
предельная
ясность для посетителя формулировок (исключаются сокращения в названиях блюд,
напитков, кондитерских изделий): он должен точно знать, что ему предлагают, в
каком объеме, по какой стоимости;
Ø
каждое
фирменное блюдо или напиток должны иметь конкретное название (красивое,
лаконичное), тогда его будет удобнее заказывать (например, вместо
словосочетания «тарталетки с макаронами, трюфелями и пюре из гусиной печени»
лучше указать историческое название этого блюда — «Медичи»).
Требования
к оформлению меню состоят прежде всего в том, что оно должно служить эффективным
средством рекламы, отражать специфику предприятия. Украшают меню эмблемы, символизирующие
специфику ресторана, кафе, столовой, бара. Меню должно быть отпечатано четким,
ясным, удобочитаемым шрифтом, на хорошей бумаге. Необходимо правильно
подобрать размер и тип шрифта, пробелы между буквами и словами. Это связано с
тем, что человек неодинаково воспринимает зрительную информацию. Так,
наибольшее внимание привлекают текст и изображение в правой верхней части раскрытого
меню. Поэтому там должна размещаться информация о фирменных блюдах, закусках,
напитках. В левой нижней части лучше поместить яркий рисунок, историческую
справку о том или ином блюде, чтобы привлечь к нему внимание потребителя.
При
печатании меню в типографии необходимо в каждом разделе оставить свободное
место для того, чтобы там можно было проставить названия закусок, блюд,
напитков, дополнительно включаемых в меню. В таком меню цены проставляются на
компьютере.
В
меню ресторана первого класса должны быть включены заказные и фирменные блюда.
Все
блюда в меню перечисляют в последовательности, соответствующей порядку приема
пищи. Фирменные и порционные блюда в общем меню выделяются в особый раздел.
Порядок перечисления блюд должен соответствовать ассортиментному минимуму —
определенному количеству блюд и напитков, которые ежедневно должны быть в
реализации.
Сокращение
количества наименований блюд и закусок, предусмотренных ассортиментным
минимумом, не допускается. Наоборот, ассортимент может быть расширен за счет
включения в меню сезонных и фирменных блюд.
Блюда
и закуски, включенные в меню, должны быть в наличии в течение всего дня работы
ресторана или в течение времени, указанного в меню для завтрака, обеда или
ужина.
Следует
также иметь в виду, что предприятия питания в дневное время могут посещать
клиенты с детьми. Поэтому в меню должны быть предусмотрены блюда в размере
полупорций или специальные блюда для детей.
При
составлении меню должно быть достигнуто разнообразие закусок, блюд, кулинарных изделий
как по видам сырья (рыбные, мясные, из птицы, дичи, овощные), так и по способам
кулинарной обработки (отварные, припущенные, жареные, тушеные, запеченные), а
также правильное сочетание гарнира с основным продуктом.
При
составлении меню учитывают вкусовые качества пищи, внешнее оформление блюд.
Следует также иметь в виду, что в блюдах должна достигаться вкусовая гармония
за счет сочетания различных компонентов друг с другом. Например, клюква с
дичью, яблоки со свининой, помидоры с телятиной, лимон с рыбой.
Следующий
фактор, учитываемый при составлении меню, — сезонность потребления. Известно,
что блюда, богатые жирами и белками, пользуются большим спросом в зимний
период, а летом повышается спрос на холодные блюда, овощи и свежие фрукты.
При
подборе гарниров и соусов к блюдам необходимо добиваться, чтобы они
соответствовали основному продукту. Например, к бефстроганову рекомендуется
жареный картофель, приготовленный из отварного, к рыбе по-польски — картофель
отварной и соус яично-масляный и т. п.
В
меню все закуски и блюда располагают в следующей очередности: от менее острых к
более острым, от припущенных к отварным, жареным и тушеным.
Существует
определенный порядок расположения закусок и блюд в меню с учетом
последовательности их подачи, определяемой различиями в технологии
приготовления, оформления и сочетания основных блюд с гарнирами и соусами.
Блюда
и закуски в меню располагаются в следующем порядке:
фирменные блюда и закуски;
холодные закуски — овощные, рыбные, мясные;
горячие закуски;
первые блюда — бульоны с яйцами, гренками,
профитролями заправочные супы (борщ, лапша, солянка и т.д.), пюреобразные супы
(из овощей, птицы, субпродуктов и т.д.), холодные супы (окрошка, ботвинья,
фруктовые супы и т.д.);
вторые блюда — рыбные, мясные, из овощей, яиц,
молочных продуктов, мучные. При расположении вторых блюд из различных видов
сырья также учитывается определенная последовательность в зависимости от
технологии их приготовления и порядка подачи. Из рыбных блюд вначале в меню
вписывают отварные (например, судак отварной), затем блюда в соусе (осетрина в
томате), жареные (судак в тесте), запеченные (треска, запеченная на сковороде).
Из мясных вначале вписываются блюда из мяса натуральные (филе, антрекот, бифштекс),
блюда в соусе (гуляш, бефстроганов), блюда из птицы и дичи. Заканчивается
перечень вторых блюд овощными блюдами, различными омлетами, яичницами, блинчиками
со всевозможными наполнителями;
сладкие блюда — вначале горячие блюда (например,
пудинги), затем холодные (кисели, компоты, желе и т.д.);
напитки — горячие (чай, кофе черный, с молоком, со
сливками, какао, шоколад), холодные (кофе-гляссе);
кондитерские изделия — пирожные, торты, фрукты.
Поскольку
наша основная задача рассмотреть организацию работы холодного цеха, мы приведем
расчетное меню блюд, выпускаемых холодным цехом.
Таблица 4.
Расчетное меню
ресторана для холодного цеха.
| № |
Наименование блюда |
№ блюда по Сборнику рецептур |
Выход одного блюда, гр. |
Количество |
|
|
Холодные закуски |
|
|
1150 |
| 01 |
Осетрина под
майонезом, салатной заправкой и овощным гарниром |
136 |
75/35/15/75 |
72 |
| 02 |
Севрюга заливная
с гарниром и соусом хрен |
138 |
200/50/25 |
72 |
| 03 |
Крабы под
маринадом |
141 |
75/75 |
72 |
| 04 |
Устрицы с
лимоном |
148 |
7 шт./72 |
72 |
| 05 |
Ассорти
мясное(говядина, язык, окорок, курица) с овощным гарниром и соусом майонез с
корнишонами |
153 |
75/75/25 |
69 |
| 06 |
Поросенок
отварной с гарниром и соусом |
150 |
100/75/25 |
69 |
| 07 |
Филе курицы под
майонезом с овощным гарниром |
151 |
75/75/40 |
69 |
| 08 |
Курица,
фаршированная с овощным гарниром и соусом майонез |
157 |
75/50/25 |
69 |
| 09 |
Филе из дичи
фаршированное с овощным гарниром, соусом майонез с корнишонами и желе |
158 |
80/50/30/20 |
69 |
| 10 |
Салат из овощей
(капуста цветная, помидоры, огурцы, спаржа, фасоль) со сметаной |
77 |
200 |
153 |
| 11 |
Салат «Мясной»(
с телятиной) с майонезом и соусом «Южный» |
97 |
112/30/8 |
153 |
| 12 |
Салат
«Столичный»
(с рябчиками)
|
98 |
150 |
153 |
| Сладкие блюда 382 |
| 1 |
Мусс
апельсиновый |
301 |
150 |
95 |
| 2 |
Самбук сливовый |
904 |
1550 |
95 |
| 3 |
Корзиночки с
ягодами и соусом вишневым |
928 |
45/50/30 |
96 |
| 4 |
Мороженое сливочное
с консервированными плодами, сиропом, миндалем и взбитыми сливками |
931 |
75/25/20/10/25 |
96 |
Холодные напитки
| 1 |
Напиток
клюквенный |
1042 |
200 |
185 |
| 2 |
Коктейль
молочно-ягодный с мороженым |
1059 |
100/25/25 |
730 |
| 3 |
Крюшон
ананасовый |
1065 |
150/15 |
384 |
| 4 |
Натуральный
сок в ассортименте |
- |
150 |
100 |
6.
Составления графика реализации блюд
Количество блюд
определенного вида, реализуемых в каждый час работы предприятия, определяется
по формуле 7,8 (стр.191, учебник Е.Д.Аграновского «Организация производства в
общественном питании):
Ач
= Ад*К,
Где Ад
– общее количество блюд данного вида,
К –коэффициент
пересчета блюд.
| Часы работы |
Число посетителей |
Коэффициент пересчета
блюд |
| 12-13 |
67 |
0,09 |
| 13-14 |
90 |
0,12 |
| 14-15 |
90 |
0,12 |
| 15-16 |
90 |
0,12 |
| 16-17 |
67 |
0,09 |
| 17-18 |
37 |
0,05 |
| 18-19 |
37 |
0,05 |
| 19-20 |
54 |
0,07 |
| 20-21 |
60 |
0,08 |
| 21-22 |
45 |
0,06 |
| 22-23 |
45 |
0,06 |
| 23-24 |
24 |
0,03 |
| 24-01 |
24 |
0,03 |
| Итого |
730 |
|
С помощью данных
перерасчета блюд составляем график реализации блюд.
Таблица 7.
График реализации блюд.
| Наименование блюда |
Количество блюд
(порций), реализованных за день
|
Часы реализации |
| 12-13 |
13-14 |
14-15 |
15-16 |
16-17 |
17-18 |
18-19 |
19-20 |
20-21 |
21-22 |
22-23 |
23-24 |
24-01 |
| Коэффициент пересчета |
| 0,09 |
0,12 |
0,12 |
0,12 |
0,09 |
0,05 |
0,05 |
0,07 |
0,08 |
0,06 |
0,06 |
0,03 |
0,03 |
| Количество блюд, реализуемых за 1 час |
| Холодные закуски |
1150 |
|
|
|
|
|
|
|
|
|
|
|
|
|
| Осетрина под
майонезом, салатной заправкой и овощным гарниром |
72 |
6 |
9 |
9 |
9 |
6 |
4 |
4 |
5 |
6 |
4 |
4 |
2 |
2 |
| Севрюга заливная
с гарниром и соусом хрен |
72 |
6 |
9 |
9 |
9 |
6 |
4 |
4 |
5 |
6 |
4 |
4 |
2 |
2 |
| Крабы под
маринадом |
72 |
6 |
9 |
9 |
9 |
6 |
4 |
4 |
5 |
6 |
4 |
4 |
2 |
2 |
| Устрицы с
лимоном |
72 |
6 |
9 |
9 |
9 |
6 |
4 |
4 |
5 |
6 |
4 |
4 |
2 |
2 |
| Ассорти мясное
(говядина, язык, окорок, курица) с овощным гарниром и соусом майонез с
корнишонами |
69 |
6 |
8 |
8 |
8 |
6 |
3 |
3 |
5 |
6 |
4 |
4 |
2 |
2 |
| Поросенок
отварной с гарниром и соусом |
69 |
6 |
8 |
8 |
8 |
6 |
3 |
3 |
5 |
6 |
4 |
4 |
2 |
2 |
| Филе курицы под
майонезом с овощным гарниром |
69 |
6 |
8 |
8 |
8 |
6 |
3 |
3 |
5 |
6 |
4 |
4 |
2 |
2 |
| Курица,
фаршированная с овощным гарниром и соусом майонез |
69 |
6 |
8 |
8 |
8 |
6 |
3 |
3 |
5 |
6 |
4 |
4 |
2 |
2 |
| Филе из дичи
фаршированное с овощным гарниром, соусом майонез с корнишонами и желе |
69 |
6 |
8 |
8 |
8 |
6 |
3 |
3 |
5 |
6 |
4 |
4 |
2 |
2 |
| Салат из овощей
(капуста цветная, помидоры, огурцы, спаржа, фасоль) со сметаной |
153 |
14 |
18 |
18 |
18 |
14 |
8 |
8 |
11 |
12 |
10 |
10 |
6 |
6 |
| Салат «Мясной»(
с телятиной) с майонезом и соусом «Южный» |
153 |
14 |
18 |
18 |
18 |
14 |
8 |
8 |
11 |
12 |
10 |
10 |
6 |
6 |
|
Салат
«Столичный»
(с рябчиками)
|
153 |
14 |
18 |
18 |
18 |
14 |
8 |
8 |
11 |
12 |
10 |
10 |
6 |
6 |
| Сладкие блюда |
|
|
|
|
|
|
|
|
|
|
|
|
|
|
| Мусс
апельсиновый |
95 |
9 |
11 |
11 |
11 |
9 |
5 |
5 |
7 |
8 |
6 |
6 |
3 |
3 |
| Самбук сливовый |
95 |
9 |
11 |
11 |
11 |
9 |
5 |
5 |
7 |
8 |
6 |
6 |
3 |
3 |
| Корзиночки с
ягодами и соусом вишневым |
96 |
9 |
12 |
12 |
12 |
9 |
5 |
5 |
7 |
8 |
6 |
6 |
3 |
3 |
| Мороженое
сливочное с консервированными плодами, сиропом, миндалем и взбитыми сливками |
96 |
9 |
12 |
12 |
12 |
9 |
5 |
5 |
7 |
8 |
6 |
6 |
3 |
3 |
| Холодные напитки |
183 л |
|
|
|
|
|
|
|
|
|
|
|
|
|
| Напиток
клюквенный |
185 п. |
17 |
22 |
22 |
22 |
17 |
10 |
10 |
14 |
15 |
12 |
12 |
6 |
6 |
| Коктейль
молочно-ягодный с мороженым |
487 |
44 |
58 |
58 |
58 |
44 |
24 |
24 |
34 |
39 |
29 |
29 |
15 |
15 |
| Крюшон
ананасовый |
384 |
35 |
46 |
46 |
46 |
35 |
20 |
20 |
27 |
35 |
24 |
24 |
13 |
13 |
| Натуральный сок
в ассортименте |
100 |
9 |
12 |
12 |
12 |
9 |
5 |
5 |
7 |
8 |
6 |
6 |
3 |
3 |
|
|
|
|
|
|
|
|
|
|
|
|
|
|
|
|
|
|
|
|
|
|
|
|
|
|
|
|
|
|
|
|
|
|
|
|
|
|
|
|
|
|
|
|
|
|
|
|
|
|
7.
Расчет потребленного количества
сырья для холодного цеха
Расчет количества сырья
и продуктов, необходимых для приготовления блюд, производится на основании
плана-меню и Сборника рецептур блюд и кулинарных изделий. Кроме расчета сырья
для приготовления блюд, реализуемых на предприятии, отдельно производится
расчет сырья для производства мучных кондитерских изделий, а затем составляется
сводная таблица расчета сырья.
Формула расчета:
Q
= q3Aдн
,
где Q
– количество продукта данного вида,
Адн
– количество соответствующих блюд, реализуемых предприятием за день, q3-норма
закладки продукта по Сборнику рецептур.
Таблица расчетов 8.
| № |
Наименование
блюда/продукта/
Количество порций
|
Вес брутто1 п. |
Вес брутто n
п. |
| 01 |
Осетрина под
майонезом, салатной заправкой и овощным гарниром,
№ 142 / 72
|
200 |
14400 |
|
|
Осетр |
160 |
11520 |
|
|
Майонез |
35 |
2520 |
|
|
Салатная заправка №
895 |
1000 |
1080 |
|
|
Масло растительное |
500 |
540 |
|
|
Уксус 3%-ный |
500 |
540 |
|
|
Сахар |
40 |
43,2 |
|
|
Перец черный молотый |
2 |
2,1 |
|
|
Соль |
20 |
21,6 |
|
|
Гарнир овощной № 808 |
75 |
5400 |
|
|
Огурцы свежие |
31,5 |
2268 |
|
|
Помидоры свежие |
35,5 |
2556 |
|
|
Салат зеленый |
21 |
1512 |
| 02 |
Севрюга заливная с
гарниром и соусом хрен, № 144/72 |
250 |
18000 |
|
|
севрюга |
150 |
10800 |
|
|
Лимон |
5,5 |
396 |
|
|
Петрушка зелень |
2 |
144 |
|
|
морковь |
6 |
432 |
|
|
Желе № 897 |
125 *72 |
9000 |
|
|
Кости пищевые |
1000 |
9000 |
|
|
Желатин |
40 |
360 |
|
|
Морковь |
25 |
225 |
|
|
Лук репчатый |
24 |
216 |
|
|
петрушка |
13 |
169 |
|
|
уксус |
15 |
135 |
|
|
яйца |
3 |
27 |
|
|
Лавровый лист |
0,3 |
2,7 |
|
|
Гарнир № 807 |
50 |
3600 |
|
|
морковь |
13 |
936 |
|
|
картофель |
14 |
1008 |
|
|
Огурцы соленые |
11 |
792 |
|
|
Горошек зеленый
консервированный |
15 |
1080 |
|
|
Желе мясное или
рыбное № 897 |
5 |
360 |
|
|
Заправка для салатов
№ 895 |
5 |
360 |
|
|
Соус № 891 |
1000 |
1800 |
|
|
Хрен корень |
547 |
984,6 |
|
|
Сметана |
650 |
1170 |
|
|
Сахар |
15 |
27 |
|
|
соль |
15 |
27 |
| 03 |
Крабы со сметаной, №
153/72 |
|
|
|
|
Крабы |
56 |
4032 |
|
|
Огурцы свежие |
56 |
4032 |
|
|
Лук зеленый |
19 |
1368 |
|
|
сметана |
35 |
2520 |
|
|
Соус Южный |
10 |
720 |
| 04 |
Устрицы с лимоном, №
154 / 72 |
|
|
|
|
устрицы |
7 |
504 |
|
|
лимоны |
80 |
5760 |
| 05 |
Ассорти мясное (говядина,
язык, окорок, курица), с овощным гарниром и соусом майонез с корнишонами,
№ 159 / 69
|
175 |
12075 |
|
|
говядина |
54 |
3726 |
|
|
Язык говяжий |
42 |
2898 |
|
|
Окорок |
33 |
2277 |
|
|
курица |
54 |
3276 |
|
|
Маргарин столовый |
1,25 |
86,25 |
|
|
Гарнир № 808 |
75 |
5400 |
|
|
Огурцы свежие |
31, 5 |
2173,5 |
|
|
Помидоры свежие |
35,5 |
2449,5 |
|
|
Салат зеленый |
21 |
1449 |
|
|
Соус № 887 |
25(1000) |
1800 |
|
|
Майонез |
730 |
1314 |
|
|
Огурцы маринованные
(корнишоны) |
455 |
819 |
|
|
Соус Южный |
40 |
72 |
| 06 |
Поросенок отварной с
гарниром и соусом, №156 / 69 |
|
|
|
|
Поросенок |
166 |
11454 |
|
|
Гарнир № 807 |
75 |
5175 |
|
|
морковь |
19 |
1311 |
|
|
картофель |
20,5 |
1414,5 |
|
|
Огурцы соленые |
16,5 |
1138,5 |
|
|
Горошек зеленый
консервированный |
23 |
1587 |
|
|
Желе мясное или
рыбное № 897 |
7,5 |
517,5 |
|
|
Заправка для салатов
№ 895 |
7,5 |
517,5 |
| 07 |
Филе курицы под
майонезом с овощным гарниром, № 157 / 69 |
190 |
13110 |
|
|
курица |
155 |
10695 |
|
|
Гарнир № 807 |
75 |
5175 |
|
|
морковь |
19 |
1311 |
|
|
картофель |
20,5 |
1414,5 |
|
|
Огурцы соленые |
16,5 |
1138,5 |
|
|
Горошек зеленый
консервированный |
23 |
1587 |
|
|
Желе мясное или
рыбное № 897 |
7,5 |
517,5 |
|
|
Заправка для салатов
№ 895 |
7,5 |
517,5 |
| 08 |
Курица, фаршированная
с овощным гарниром и соусом майонез, № 163 / 69 |
150 |
10350 |
|
|
курица |
94 |
6486 |
|
|
свинина |
27 |
1863 |
|
|
шпик |
9 |
621 |
|
|
яйца |
1/4 |
17,5 |
|
|
фисташки |
16 |
1104 |
|
|
молоко |
35 |
2145 |
|
|
Мускатный орех |
0,1 |
6,9 |
|
|
Перец молотый |
0,01 |
0,69 |
|
|
Гарнир № 807 |
50 |
3450 |
|
|
морковь |
13 |
897 |
|
|
картофель |
14 |
966 |
|
|
Огурцы соленые |
11 |
759 |
|
|
Горошек зеленый
консервированный |
15 |
1035 |
|
|
Желе мясное или
рыбное № 897 |
5 |
345 |
|
|
Заправка для салатов
№ 895 |
5 |
345 |
|
|
Соус № 887 |
25 (1000) |
1725 |
|
|
Майонез |
730 |
1259,2 |
|
|
Огурцы маринованные
(корнишоны) |
455 |
784,8 |
|
|
Соус Южный |
40 |
69 |
| 09 |
Филе из дичи
фаршированное с овощным гарниром, соусом майонез с корнишонами и желе, №164 /
69 |
|
|
|
|
курица |
147 |
10143 |
|
|
печень |
51 |
3519 |
|
|
шпик |
14 |
966 |
|
|
морковь |
5 |
345 |
|
|
Сельдерей молодой
корень |
2,5 |
172,5 |
|
|
Лук репчатый |
5 |
345 |
|
|
мадера |
5 |
345 |
|
|
Мускатный орех |
0,5 |
34,50 |
|
|
Перец черный молотый |
0,02 |
1,38 |
|
|
Масса желе |
20 |
1380 |
|
|
Гарнир № 808 |
50 |
3450 |
|
|
Огурцы свежие |
21 |
1449 |
|
|
Помидоры свежие |
24 |
1656 |
|
|
Салат зеленый |
14 |
966 |
|
|
Соус № 887 |
30 (1000) |
2070 |
|
|
Майонез |
730 |
1511,1 |
|
|
Огурцы маринованные
(корнишоны) |
455 |
941,8 |
|
|
Соус Южный |
40 |
82,8 |
| 10 |
Салат из овощей
(капуста цветная, помидоры, огурцы, спаржа, фасоль) со сметаной, № 78 / 153 |
|
|
|
|
Капуста цветная |
342 |
52326 |
|
|
Фасоль стручковая
консервированная |
167 |
25551 |
|
|
Помидоры свежие |
176 |
26928 |
|
|
Огурцы свежие |
156 |
23868 |
|
|
Спаржа свежая |
195 |
29835 |
|
|
Яйца |
3,3 |
504,9 |
|
|
сметана |
200 |
30600 |
| 11 |
Салат «Мясной» (с
телятиной) с майонезом и соусом Южный, № 100 / 153 |
150 |
22950 |
|
|
Телятина |
71 |
10863 |
|
|
Картофель |
55 |
8415 |
|
|
Огурцы свежие |
38 |
5814 |
|
|
Яйца |
0,5 |
76,5 |
|
|
Крабы (консервы) |
6 |
918 |
|
|
Майонез |
30 |
4590 |
|
|
Соус Южный |
8 |
1224 |
| 12 |
Салат «Столичный» с
рябчиками,
№ 101 / 153
|
150 |
22950 |
|
|
Рябчик |
112 |
17136 |
|
|
Картофель |
27 |
4131 |
|
|
Огурцы соленые |
25 |
3825 |
|
|
Салат |
14 |
2142 |
|
|
Крабы (консервы) |
6 |
918 |
|
|
Яйца |
0,5 |
76,5 |
|
|
Майонез |
45 |
6885 |
Таблица 9.
Расчет общего
количества гарниров, соусов и заправок.
|
|
|
|
|
|
|
Салатная
заправка № 895 |
1000 |
2820 |
|
|
Масло
растительное |
500 |
1410 |
|
|
Уксус
3%-ный |
500 |
1410 |
|
|
Сахар |
40 |
112,8 |
|
|
Перец
черный молотый |
2 |
5,6 |
|
|
Соль |
20 |
56,4 |
|
|
Гарнир
овощной №808 |
150 |
14250 |
|
|
Помидоры
свежие |
71 |
5890,5 |
|
|
Огурцы
свежие |
63 |
6661,5 |
|
|
Салат
зеленый |
42 |
3927 |
|
|
Соус
№ 887 |
1000 |
5595 |
|
|
Майонез |
730 |
4084,3 |
|
|
Огурцы
маринованные (корнишоны) |
455 |
2545,7 |
|
|
Соус
Южный |
40 |
223,8 |
|
|
Гарнир
№ 807 |
150 |
17400 |
|
|
морковь |
38 |
4455 |
|
|
картофель |
41 |
4803 |
|
|
Огурцы
соленые |
33 |
3828 |
|
|
Горошек
зеленый консервированный |
42 |
5289 |
|
|
Соус
№ 891 |
1000 |
3525 |
|
|
Хрен
корень |
547 |
4923 |
|
|
Сметана |
650 |
5850 |
|
|
Сахар |
15 |
135 |
|
|
соль |
15 |
135 |
|
|
Соус
майонез, № 884 |
1000 |
2760 |
|
|
Масло
растительное |
750 |
2070 |
|
|
Яйца |
6
шт |
16,6 |
|
|
Горчица
столовая |
25 |
69 |
|
|
Уксус
3%-ный |
150 |
414 |
|
|
Сахар |
20 |
55,2 |
|
|
Желе
мясное, № 897 |
1000 |
10740 |
|
|
Кости
пищевые |
1000 |
10740 |
|
|
Желатин |
40 |
429,6 |
|
|
Морковь |
25 |
268,5 |
|
|
Лук
репчатый |
24 |
257,7 |
|
|
Петрушка
корень |
13 |
139,6 |
|
|
Уксус
9%-ный |
15 |
161,1 |
|
|
Яйца
(белки) |
3
шт. |
32,2 |
|
|
Лавровый
лист |
0,3 |
3,2 |
|
|
|
|
|
Таблица 10.
Расчет сырья для
холодных сладких блюд и напитков
|
|
Наименование, №
рецептуры, выход |
|
Количество на n
порций |
| 1 |
Мусс
апельсиновый, № 966, 150 г |
1000 г |
95*150 = 14250 |
|
|
Апельсины |
455 |
6483,7 |
|
|
Сахар |
160 |
2280 |
|
|
Желатин |
27 |
384,7 |
|
|
Кислота лимонная |
1 |
14,25 |
|
|
Вода |
735 |
10473,7 |
| 2 |
Самбук сливовый,
№ 969, 150 г |
1000 г |
95*150 = 14250 |
|
|
Слива |
722 |
10288,5 |
|
|
Сахар |
200 |
2850 |
|
|
Желатин |
15 |
213,7 |
|
Яйца (белки) |
2 шт. |
28,5 |
|
|
Вода (для
желатина) |
420 |
5985 |
| 3 |
Мороженое
сливочное с консервированными плодами, сиропом, миндалем и взбитыми сливками,
№ 997, 150 г |
150 г |
96 |
|
|
Мороженое
сливочное или пломбир |
75 |
7200 |
|
|
Плоды или ягоды
консервированные |
25 |
2400 |
|
|
Сироп
консервированного компота |
20 |
1920 |
|
|
Сахар |
5 |
480 |
|
|
Миндаль
очищенный |
12 |
1152 |
|
|
Сливки взбитые,
№ 979 |
25 (1000) |
2400 |
|
|
Сливки 35%-ной
жирности |
900 |
2160 |
|
|
Рафинадная пудра |
150 |
360 |
|
|
|
|
|
| 1 |
Напиток
клюквенный, № 1042 / 185*200 |
1000 |
37000 |
|
|
Клюква |
135 |
4995 |
|
|
Вода |
1015 |
37555 |
|
|
Сахар |
120 |
4440 |
|
|
|
|
|
| 2 |
Коктейль
молочно-ягодный с мороженым, № 1059 / 487 |
150 |
73050 |
|
|
Молоко |
100 |
4870 |
|
|
Мороженое |
25 |
12175 |
|
|
Сироп ягодный
натуральный |
25 |
12175 |
| 3 |
Крюшон
ананасовый, № 1065 / 384 |
150/15 |
|
|
|
Ананас свежий
или консервированный |
15 |
5760 |
|
|
Сок ананасный |
30 |
11520 |
|
|
Напиток лимонный
или апельсиновый, № 1041 |
70 |
26880 |
|
|
Вода минеральная |
150 |
57600 |
|
|
|
|
|
|
|
Напиток лимонный
или апельсиновый, № 1041 |
1000 |
26880 |
|
|
Апельсины |
110 |
2956,8 |
|
|
Вода |
1050 |
28224 |
|
|
Сахар |
120 |
3225,6 |
|
|
|
|
|
|
|
|
|
|
Затем данные сводятся в
сводную – расчетную сырьевую ведомость.
Таблица 11.
| № |
Наименование продукта |
Количество, г |
| 1 |
Осетр |
11520 |
|
|
Севрюга |
10800 |
|
|
Крабы (консервы) |
5868 |
|
|
Устрицы |
504 шт. |
|
|
Говядина |
3726 |
|
|
Язык говяжий |
2898 |
|
|
Окорок |
2277 |
|
|
Курица |
30600 |
|
|
Поросенок |
11454 |
|
|
Кости пищевые |
10740 |
|
|
Свинина |
1863 |
|
|
Шпик |
1587 |
|
|
Яйца |
724,2 |
|
|
Фисташки |
1104 |
|
|
Печень |
3519 |
|
|
Телятина |
10863 |
|
|
Рябчик |
17136 |
|
|
Майонез |
18079,3 |
|
|
Молоко |
7015 |
|
|
Мускатный орех |
41,4 |
|
|
Мадера |
345 |
|
|
Помидоры свежие |
32818,5 |
|
|
Огурцы свежие |
40375,5 |
|
|
Огурцы соленые |
7653 |
|
|
Огурцы маринованные
(корнишоны) |
2545,71 |
|
|
Спаржа свежая |
29835 |
|
|
Капуста цветная |
52326 |
|
|
Перец черный молотый |
13,88 |
|
|
Морковь |
5500,5 |
|
|
Фасоль стручковая
консервированная |
25551 |
|
|
Сметана |
38970 |
|
|
Соус Южный |
2167,8 |
|
|
Лук репчатый |
602,7 |
|
|
Лук зеленый |
1368 |
|
|
Салат зеленый |
34561,5 |
|
|
Петрушка зелень |
144 |
|
|
Петрушка корень |
139,6 |
|
|
Сельдерей корень |
172,5 |
|
|
Картофель |
17349 |
|
|
Сахар |
13578 |
|
|
Продолжение таблицы
11 |
|
|
|
Соль |
191,4 |
|
|
Хрен корень |
4923 |
|
|
Желатин |
1028 |
|
|
Горошек зеленый
консервированный |
5289 |
|
|
Масло растительное |
3480 |
|
|
Уксус 3%-ный |
1959 |
|
|
Уксус 9%-ный |
161,1 |
|
|
Лимон |
6156 |
|
|
Лимонная кислота |
14,25 |
|
|
Маргарин столовый |
86,25 |
|
|
Лавровый лист |
3,2 |
|
|
Горчица столовая |
69 |
|
|
Сладкие блюда |
|
|
|
Апельсины |
6483,7 |
|
|
Слива |
10288,5 |
|
|
Яйца (белки) |
28,5 |
|
|
Мороженое сливочное
или пломбир |
7200 |
|
|
Плоды или ягоды
консервированные |
2400 |
|
|
Сироп
консервированного компота |
1920 |
|
|
Миндаль очищенный |
1152 |
|
|
Клюква |
4995 |
|
|
Сироп ягодный
натуральный |
12175 |
|
|
Ананас свежий или
консервированный |
5760 |
|
|
Сок ананасный |
11520 |
|
|
Вода минеральная |
57600 |
|
|
Сливки 35%-ные |
2160 |
|
|
Рафинированная пудра |
360 |
8.
Подбор оборудования
В
холодных цехах используется механическое оборудование: универсальные приводы П-II,
ПX-06 со сменными механизмами (для
нарезки сырых, вареных овощей; для перемешивания салатов и винегретов, для
выжимания соков из фруктов); машина для нарезки вареных овощей МРОВ. Эти машины
выполняют всевозможные операции: нарезают сырые и вареные овощи, перемешивают
салаты и винегреты (когда их готовят в большом количестве), взбивают,
протирают, выжимают соки. В небольших цехах эти операции в основном выполняют
вручную.
Кроме
того, в цехе при большом ассортименте гастрономических изделий, бутербродов используют
средства малой механизации: машина для нарезки гастрономических изделий
МРГУ-370 (для нарезки и укладки в лотка ветчины, колбасы, сыра); хлеборезка
МРХ; ручной маслоделитель РДМ.
Холодный
цех должен быть оснащен достаточным количеством холодного оборудования. Для
хранения продуктов и готовых изделий устанавливают холодильные шкафы (ШХ-0,6,
ШХ-0,8, ШХ-1,4), производственные столы СОЭСМ-2 с охлаждаемым шкафом, СО-ЭСМ-3
с охлаждаемым шкафом, горкой и емкостью для салата, низкотемпературный прилавок
для хранения и отпуска мороженого. Подбор холодильного оборудования зависит от
мощности холодного цеха, количества продуктов и готовых изделий, подлежащих
хранению.
Подбор
производственных столов зависит от количества работников, одновременно
работающих в цехе, из расчета, что фронт работы на каждого работника должен
быть не менее 1.5 м. промывка овощей, зелени, фруктов производится в
стационарных или передвижных ваннах или для этой цели используют секционный
модулированный стол со встроенной моечной ванной СМВСМ. В холодных цехах
больших предприятий применяют передвижные стеллажи для кратковременного
хранения блюд перед отправкой их на реализацию.
В
холодном цехе используют разнообразные инструменты, инвентарь, приспособления:
ножи поварской тройки, ножи гастрономические (колбасный, для нарезки ветчины,
сыра, масла, для фигурной нарезки масла, нож-вилка), томаторезки, яйцерезки,
приспособление для нарезки сыра, скребок для масла, разделочные доски, ручные
соковыжималки, приборы для раскладывания блюд, формы для заливных блюд, желе,
муссов.
В
холодных цехах предприятий с широким ассортиментом холодных блюд и закусок
выделяют технологические линии приготовления холодных блюд и закусок, сладких
блюд и напитков. На этих линиях организуются раздельные рабочие места для
приготовления салатов и винегретов; нарезки гастрономических мясных и рыбных
продуктов; порционирования и оформления блюд; для приготовления заливных блюд;
бутербродов; холодных супов; сладких блюд и напитков.
На
рабочем месте для приготовления салатов и винегретов используют ванны или стол
со встроенной моечной ванной для промывки свежих овощей, зелени. Нарезают сырые
и вареные овощи на разных разделочных досках с маркировкой «ОС» или «ОВ»,
применяя ножи поварской тройки. Для механизации нарезки овощей устанавливают
универсальный привод ПХ-0.6 со сменными механизмами.
Рациональная
организация рабочего места состоит из двух производственных столов: на одном
столе нарезают овощи, смешивают компоненты и заправляют салаты и винегреты (это
может быть стол секционный модулированный для малой механизации СММСМ или
обычный производственный стол), на другом столе порционируют и оформляют салаты
и винегреты перед отпуском в торговый зал, для этой операции применяют
секционные модулированные столы с охлаждаемым шкафом и горкой СОЭСМ-2 или
СОЭСМ-3. На столе стоят настольные весы ВНЦ-2, справа ставят посуду с готовым
салатом и мерный инвентарь для ее порционирования (ложки, лопатки, салатные
приборы), слева – столовую посуду (салатники, закусочные тарелки). Здесь же
производят оформление блюд. Перед оформление салатов подготавливают продукты,
используемые в качестве украшений (делают украшения из овощей, нарезают
отварные яйца, помидоры, зелень петрушки, карбонат, лимоны и т.д.). Нарезка производится
специальными инструментами и приспособлениями. Подготовленные продукты хранят в
секциях охлаждаемой горки.
На
рабочем месте для приготовления закусок из гастрономических продуктов нарезают,
порционируют и оформляют блюда из мясных и рыбных продуктов (ассорти рыбное,
мясное; колбасы, ветчина, балыки, сыр и др.). На рабочем месте ставят столы для
малой механизации (машина МРГУ-370 для нарезки гастрономических продуктов). Для
нарезки продуктов вручную используют гастрономические ножи. Для контроля за
массой порций гастрономических продуктов используют весы ВНЦ-2.
Если
в ассортимент холодных блюд включены заливные блюда, то для их приготовления
рекомендуется организовывать специализированное рабочее место. Нарезают
отварные и мясные продукты на производственных столах СП-1050, СП-1470,
оборудованных весами ВНЦ-2 для взвешивания порций продуктов, ножами поварской
тройки, разделочными досками с маркировкой «МВ», «РВ», лотками для укладывания
взвешенных продуктов.
При
приготовлении небольшого количества бутербродов хлеб нарезают в ручную, а при
изготовлении в большом количестве используют хлеборезку МХР.
Помимо
обычных наплитных котлов, которые используются для варки продуктов, в холодном
цехе необходимы специальные котлы для варки рыбы. Цех должен быть оснащен
посудой для придания блюдам определенной формы — противнями, формами для
заливных блюд, паштетницами и другими формочками и выемками разных фасонов и
размеров.
Для
хранения маринованных, квашеных овощей и овощных маринадов, холодных соусов
необходима посуда из неокисляющегося материала (из нержавеющей стали,
керамиковая или эмалированная).
При
изготовлении салатов, винегретов в больших количествах использование обычных
котлов неудобно: овощи трудно распределить равномерно, так как при
перемешивании они мнутся.
Удобен
для этой цели противень с высокими бортами, идущими слегка на конус. Составные
части салатов, винегретов закладываются в него равномерными слоями, и двух-,
трехкратное перемешивание в поперечном его направлении обеспечивает равномерный
состав блюда.
Наряду
с обычными поварскими ношами большого, среднего и малого размеров в холодном
цехе необходимы гастрономические ноши, веничек металлический, ступка с
пестиком, решета, сита и ряд других предметов, без которых нельзя обойтись.
Большая
часть холодных блюд порционируется и оформляется непосредственно в цехе,
поэтому для их хранения весьма желательно иметь закрытый стеллаж (лучше
передвижной).
Для
специй, приправ, холодных соусов в цехе следует оборудовать горку.
Номенклатура
оборудования, его производительность, а также номенклатура, емкость и
количество инвентаря и инструментов, которые необходимы холодному цеху, зависят
от объема работы и ассортимента выпускаемой им продукции.
Оборудование,
инвентарь и инструменты должны быть распределены по рабочим местам цеха и
удобно расположены. Все необходимое должно быть под руками, чтобы повар не
затрачивал лишнего времени на переходы и поиски нужной посуды или инструментов.
Правильное
оборудование рабочих мест обеспечивает повышение производительности труда и
позволяет выпускать продукцию высокого качества.
Подбор
механического оборудования для холодного цеха осуществляется по «Нормам
оснащения предприятий общественного питания торгово-технологическим и
холодильным оборудованием» в зависимости от типа предприятия, режима его
работы, характерной максимальной загрузки торгового зала в часы «пик», а также
форм обслуживания. Подбор осуществляется с указанием производительности машин и
количества единиц каждого вида. В настоящее время помимо российского оборудования
широко применяется оборудование зарубежного производства, отличающееся высоким
качеством. Поэтому, если есть возможность, лучше приобрести импортное
оборудование.
По
вышеуказанным принципам подбираем следующее оборудование для холодного цеха
ресторана:
Механическое:
1)
Привод универсальный ПУ – 0,6 – 1шт.
2)
Хлеборезка
МХР – 200 – 1шт.
3)
Маслоделитель
ручной РДМ – 5 – 1шт.
4)
Машина
для нарезки вареных овощей МРОВ – 160 – 1шт.
5)
Машина
для нарезки гастрономических продуктов МРГ – 300А 1шт.
Таблица12.
Техническая
характеристика механического оборудования.
| № ПП |
Наименование
оборудования |
Марка |
Мощность электро
двигателя. кВт |
Число оборотов
приводного вала. Об\мин |
Габариты,
мм
|
Масса. кг |
| Дл. |
Шир. |
Выс. |
| 1 |
Привод универсальный |
ПУ– 0,6 |
0,6 |
170 |
530 |
280 |
310 |
60 |
| 2 |
Хлеборезка |
МХР-200 |
0,27 |
1400 |
1200 |
600 |
730 |
80 |
| 3 |
Маслоделитель |
РДМ-5 |
|
|
|
|
|
|
| 4 |
Машина для нарезки
вареных овощей. |
МРОВ- 160 |
0,18 |
170 |
473 |
371 |
500 |
21 |
| 5 |
Машина для нарезки
гастрономических продуктов |
МРГ- 300А |
0,37 |
170 |
680 |
480 |
570 |
50 |
| 6 |
Смесительная
установка для молочных коктейлей |
|
|
|
|
|
|
|
Холодильное
и производственное оборудование подбираем согласно нормам оснащения ресторана
(учебник Л.А.Радченко «Организация производства на предприятиях общественного
питания, приложение1).

9.
Расчет занятой и общей площади
Оборудование,
предназначенное для холодного цеха, записываем в таблицу с указанием
наименования, марки, количества и занимаемой площади. Затем определяем общую
площадь, занимаемую оборудованием, которая будет называться полезной площадью (Sпол).
Таблица 13.
Расчет полезной площади
холодного цеха

Расчет общей
площади цеха рассчитываем с помощью следующих формул:
,
м2
где: k
– коэффициент использования площади помещения, принимается 0,4.
Sобщ
=18,55
м2
10.
Подбор инструментов и инвентаря
Согласно нормам
оснащения предприятий общественного питания посудой, столовыми приборами,
мебелью и кухонным инвентарем для холодного цеха требуется следующее
немеханическое оборудование:
Таблица 14.
Инструменты и инвентарь
для холодного цеха.
| №пп |
Наименование |
Кол-во шт. |
|
1
2
3
4
5
6
7
8
9
10
11
12
13
14
15
16
|
Нож филейный
Нож гастрономический
(колбасный)
Нож для нарезки
ветчины
Нож с двумя ручками
для нарезки масла и сыра
Нож кухонный
Нож с одной ручкой
для нарезки сыра и масла
Нож для фигурной
нарезки масла
Нож – вилка
Томаторезка ручная
Яйцерезка
Скребок для сливочного
масла
Доска разделочная
Соковыжемалка ручная
Лопатка – нож для
заливных блюд
Стеллажи СП-230 (принимается
без расчета исходя из удобства работы)
Ванна моечная ВМСМ-1
(принимается без расчета исходя из удобства) работ
|
2
2
1
1
5
1
1
1
1
1
1
6
1
1
1
1
|
11.
Подбор рабочей силы и составление
графика выхода на работу
Важнейшей
задачей нормирования труда является определение численности работников.
Различают следующие основные методы определения необходимого количества
работников: по нормам выработки, нормам времени; рабочим местам на основании
норм обслуживания.
Численность
работников предприятий общественного питания непосредственно зависит от объема
товарооборота, выпуска продукции, форм обслуживания, степени механизации
производственных процессов. Чем больше товарооборот и выпуск продукции
собственного производства, тем выше численность работников.
Режим
работы холодного цеха устанавливается в зависимости от типа предприятия и
режима его работы. При продолжительности работы предприятия 11 и более часов
работники цеха работают по ступенчатому, двухбригадному или комбинированному
графику. Общее руководство цехом осуществляет бригадир или ответственный
работник из поваров IV или V
разряда.
Бригадир
организует работу по выполнению производственной программы в соответствии с
планом-меню. С вечера приготавливают трудоемкие блюда: студни, заливные блюда,
кисели, компоты и др.
Время
на подготовку работы в начале рабочего дня используется для подбора посуды,
инвентаря, получения продуктов в соответствии с производственным заданием. При
хорошей организации производства время на подготовку работы должно составлять
не более 20 минут. Повара получают задания в соответствии с их квалификацией.
Бригадир следит за соблюдением правит технологии приготовления холодных и сладких
блюд, графиком их выпуска, чтобы исключить перебои в обслуживании посетителей.
В
холодных цехах с большим объемом работы осуществляется пооперационное
разделение труда с учетом квалификации поваров.
Повара
III разряда занимаются подготовкой
продуктов, входящих в состав блюд (варкой овощей, варкой или жареньем мясных и
рыбных полуфабрикатов, нарезкой овощей обработкой сельди).
Повара
IV разряда осуществляют приготовление
и оформлением холодных блюд массового спроса (салаты, овощные, рыбные, мясные,
винегреты, студни, рыба под маринадом и др.), сладких блюд.
Повара
V разряда осуществляют приготовление
и оформление сложных блюд (заливных, фаршированной рыбы, галантина, ассорти
рыбного и мясного желе, муссов и др.).
По
окончании рабочей смены повара отчитываются за проделанную работу, а бригадир
или ответственный повар составляет отчет о реализации блюд за день в торговый
зал, буфеты и филиалы.
Расчет
рабочей силы производится на основании плана-меню и норм времени для
приготовления блюд каждого вида по формуле (согласно учебнику Л.А.Радченко
«Организация производства на предприятиях общественного питания», приложение
6):
N=n*t/3600*Т*λ
где
n - величина трудозатрат, чел-сек;
t
- норма времени на приготовление 1 блюда,
λ-
коэффициент производительности труда = 1,14;
Т
- продолжительность рабочего дня повара, ч.
Таблица
15.
Расчет
величины трудозатрат.
|
|
Наименование
блюда |
Количество
блюд, реализуемых за 1 день |
Норма времени
на приготовление 1 блюда (с чисткой и резкой) |
Время, необходимое для выпуска блюд, с |
| 01 |
Осетрина под
майонезом, салатной заправкой и овощным гарниром |
72 |
130 |
9360 |
| 02 |
Севрюга заливная
с гарниром и соусом хрен |
72 |
300 |
21600 |
| 03 |
Крабы под
маринадом |
72 |
180 |
12960 |
| 04 |
Устрицы с
лимоном |
72 |
180 |
12960 |
| 05 |
Ассорти
мясное(говядина, язык, окорок, курица) с овощным гарниром и соусом майонез с
корнишонами |
69 |
150 |
10350 |
| 06 |
Поросенок
отварной с гарниром и соусом хрен |
69 |
150 |
10350 |
| 07 |
Филе курицы под
майонезом с овощным гарниром |
69 |
150 |
10350 |
| 08 |
Курица,
фаршированная с овощным гарниром и соусом майонез с хреном |
69 |
150 |
10350 |
| 09 |
Филе из дичи
фаршированное с овощным гарниром, соусом майонез с корнишонами и желе |
69 |
150 |
10350 |
| 10 |
Салат из овощей
(капуста цветная, помидоры, огурцы, спаржа, фасоль) со сметаной |
153 |
200 |
30600 |
| 11 |
Салат «Мясной»(
с телятиной) с майонезом и соусом «Южный» |
153 |
200 |
30600 |
| 12 |
Салат
«Столичный»
(с рябчиками)
|
153 |
220 |
30600 |
| Сладкие блюда |
| 1 |
Мусс
апельсиновый |
95 |
60 |
5700 |
| 2 |
Самбук сливовый |
95 |
70 |
6650 |
| 3 |
Мороженое
сливочное с консервированными плодами, сиропом, миндалем и взбитыми сливками |
96 |
20 |
1920 |
Холодные напитки
| 1 |
Напиток
клюквенный |
185 |
20 |
3700 |
| 2 |
Коктейль
молочно-ягодный с мороженым |
487 |
20 |
9740 |
| 3 |
Крюшон
ананасовый |
384 |
20 |
7680 |
| 4 |
Натуральный
сок в ассортименте |
100 |
10 |
100 |
|
|
Итого |
|
|
235920 |
N=n*t/3600*Т*λ
N=
235620 / (3600*13*1,14) = 4,42~4
Таким образом, в холодном цехе
будет работать четыре повара по линейному графику (в одну смену).
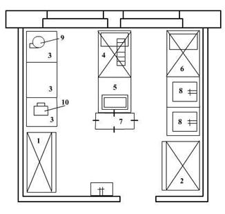
12.
План холодного цеха с расстановкой
оборудования
1.
холодильный шкаф ШХ-0.8;
2- холодильный шкаф ШХ –0.6
3- стол производственный.
4- секция-стол с охлаждаемым шкафом и горкой СОЭСМ-3
5- низкотемпературный прилавок СН-0,15.
6- секция-стол с охлаждаемым шкафом СОЭСМ-2;
7- передвижной стеллаж.
8- моечная ванна ВМ-2СМ
9- машина для нарезки вареных овощей
10
– маслоделитель ручной
Список использованных источников
1.
Правила
оказания услуг общественного питания. Утв. Постановлением Правительства РФ от
15.08.97 № 1036.
2.
ГОСТ
Р 50647-94 «Общественное питание. Классификация предприятий»
3.
ГОСТ
Р 50763-95 «Общественное питание. Кулинарная продукция, реализуемая населению.
Общие технические условия».
4.
ГОСТ
Р 50764-95 «Услуги общественного питания».
5.
ГОСТ
Р 50935-96 «Общественное питание. Требование к обслуживающему персоналу».
6.
ОСТ
28-1-95 «Общественное питание. Требование к производственному персоналу».
7.
ГОСТ
Р 50647-94 «Общественное питание. Термины и определения».
8.
Аграновский
Е.Д. Организация производства на предприятиях общественного питания. – М.:
Экономика, 1990. -
9.
Кулинария:
теоретические основы профессиональной деятельности (Текст): Учебное пособие: В
2-х ч. / О.М.Соловьева, Г.К.Миронова, А.П. Елепин. – М.: Академкнига / Учебник,
2007. – Ч.1: 205 с.: ил.
10. Кулинария:
теоретические основы профессиональной деятельности (Текст): Учебное пособие: В
2-х ч. / О.М.Соловьева, Г.К.Миронова, А.П. Елепин. – М.: Академкнига / Учебник,
2007. – Ч.2: 205 с.: ил.
11. Никуленкова
Т.Т. Маргелов В.Н. «Проектирование предприятия общественного питания» М.
«Экономика», 1987г.
12. Нормы
оснащения предприятий общественного питания столовой посудой, приборами,
мебелью и кухонным инвентарём. Утв. Приказом МТ СССР 38 от 09.022.73г.
13. Радченко
Л.А. «Организация производства на предприятиях общественного питания» М.
«Феникс», 2008г.-373, [1] с.