Курсовая работа: Кран стреловой на базе автомобиля КамАЗ
Курсовая работа: Кран стреловой на базе автомобиля КамАЗ
Федеральное агентство по
образованию
Государственное
образовательное учреждение высшего профессионального образования
Читинский Государственный
Университет (ЧитГУ)
Институт технологических
и транспортных систем
Кафедра строительных и
дорожных машин
Пояснительная записка
к курсовому проекту
на тему:
«Кран стреловой на базе
автомобиля КамАЗ»
Реферат
Грузоподъемность,
механизм, барабан, канат, крюк, полиспаст, электродвигатель, редуктор,
подвеска, стрела, нарезка.
Целью
курсового проекта является расчет автомобильного крана со следующими исходными
данными:
-
Грузоподъемность – 20 т,
- Высота
подъема груза – 17 м,
- Скорость
подъема – 4,2 м/мин,
- Частота
вращения – 1,6 мин-1,
- Режим
работы – Легкий,
При
выполнении курсового проекта были решены следующие основные задачи:
- Расчет
механизма подъема,
- Расчет
механизма изменения вылета,
- Расчет
механизма передвижения,
- Расчет
механизма вращения,
- Расчет
устойчивости.
Содержание
Введение
1. Расчёт механизма
подъёма
1.1 Выбор полиспаста
1.2 Расчёт и выбор каната
1.3 Расчёт барабана
1.4. Выбор крюка и
грузовой подвески
1.5 Выбор двигателя,
редуктора и тормоза механизма подъёма
2. Расчёт механизма
передвижения
2.1 Общий расчёт
2.2 Выбор двигателя,
редуктора и тормоза механизма передвижения
3. Расчёт механизма
вращения
3.1 Общий расчёт
3.2 Выбор двигателя,
редуктора и тормоза механизма вращения
4. Расчёт механизма
изменения вылета стрелы
4.1 Общий расчёт
4.2 Выбор двигателя,
редуктора и тормоза механизма изменения вылета стрелы
5. Расчёт устойчивости
крана
6. Техника безопасности
Специальная часть
Заключение
Список использованной
литературы
Приложение
Введение
Грузоподъёмные
машины являются существенной составной частью большинства производств и играют
важную роль в механизации и автоматизации производственных процессов. Современное
краностроение характеризуется совершенствованием конструкций, применением новых
материалов, методов и средств изготовления и контроля, внедрением более
совершенных методов расчёта и основанных на них снижении массы кранов,
повышении их надёжности.
Автомобильные
стреловые самоходные краны общего назначения служат для подъема и опускания
грузов и перемещения их на небольшие расстояния в горизонтальном направлении
при производстве строительно-монтажных и перегрузочных работ на
рассредоточенных объектах.
Полный
цикл работы крана состоит из ряда последовательных операций: захват груза, его
подъем и перемещение к месту назначения, опускание и отцепка груза, подъем и
перемещение грузозахватного устройства или приспособления в исходное положение
для захвата следующего груза и его последующего подъема и перемещения.
Так
как работа крана состоит из повторяющихся циклов, то автомобильные стреловые
самоходные краны относятся к подъемно-транспортным машинам цикличного
(периодического) действия в отличие от машин непрерывного действия (например,
транспортеров), в которых перемещение грузов происходит непрерывным потоком.
Подъемно-транспортные
машины периодического действия подразделяются на несколько групп машин, из
которых наиболее многочисленной является группа стреловых самоходных кранов.
Отличительной особенностью этой группы кранов является собственный привод для
свободного перемещения по местности. К этой группе и относятся автомобильные
стреловые самоходные краны, ходовое устройство которых включает в себя шасси
автомобиля, его силовую установку, трансмиссию и систему управления.
Стреловые
самоходные краны, по сравнению с другими группами машин периодического действия
(например, башенными строительными кранами), отличают следующие
эксплуатационные преимущества: – большая подвижность и независимость
передвижения в пределах строительной площадки; – монтаж и демонтаж кранов,
подготовка площадок для их эксплуатации и передвижения, а также перебазирование
крана с объекта на объект осуществляются проще, быстрее и дешевле; – наличие
комплекта сменного стрелового оборудования, позволяющего использовать кран на
различных видах работ и сравнительно быстро менять его основные параметры.
Автомобильные
краны уступают по ряду технических показателей (грузоподъемности, скорости
передвижения, преодолеваемому уклону пути и т. п.) кранам на специальном шасси.
Объясняется это тем, что значения технических параметров стреловых самоходных
кранов во многом зависят от конструкции ходового устройства. Для автомобильных
кранов эти значения ограничиваются возможностями шасси автомобиля,
использованного в качестве ходового устройства. Вместе с тем автомобильные
краны более экономичны в производстве и эксплуатации, чем краны на специальном
шасси.
Большинство
кранов может работать на выносных опорах и без них. Некоторые могут
передвигаться с поднятым грузом, что значительно расширяет область их
применения
1.
Расчёт
механизма подъёма
1.1
Выбор полиспаста
Первым
вопросом при выполнении расчёта является выбор полиспаста и его кратности.
Кратность
полиспаста m выбирается исходя из условий подвешивания груза весом Q=20 т = 196,2
кН на n ветвях каната.
Выбираем n = 4
– при натяжении каната 5-10 т при грузе до 25 т.
В одинарных (простых)
полиспастах, m=n:
m=n=4; (1)
Определим
натяжение Sб, кН:
Sб=Q/(n·ηпол),
(2)
где ηпол=0,84935
– коэффициент полезного действия полиспаста.
Sб=196,2/(4*0,84935)=57,75
кН.

Рис. 1. Схема
выбранного полиспаста
1.2
Расчёт и выбор каната
Канат для
механизма рассчитывается по формуле:
Pк/Sб>kк.
(3)
Формула (3)
может быть преобразована:
Pк>Sб·kк,
(4)
где Pк
– разрывное усилие каната, кН;
kк=5
– коэффициент запаса прочности каната. [1]
Pк>57,75·5=288,75
кН.
По
полученному разрывному усилию выбираем канат стальной типа ЛК-О конструкции 6×19(1+9+9)+1о.с.
диаметром dк = 23 мм. Расчётная площадь сечения проволок: 198,67 мм2.
Расчётная масса 1000 м каната = 1950,0 кг. Маркировочная группа по временному
сопротивлению разрыва – 1800 МПа. Разрывное усилие каната в целом не менее 295
кН.
1.3 Расчёт
барабана
Зная диаметр
каната dк и режим работы механизма, определяют диаметр барабана D1,
мм.
Диаметр
барабана или блока D1, мм, огибаемого канатом, определяют по
формуле:
D1=dк·(ℓ-1),
(5)
где ℓ =
16 – коэффициент, зависящий от типа грузоподъёмной машины и режима её
эксплуатации. Выбран для стрелового крана с машинным приводом и легким режимом
работы. [1]
D1 =
23·(16-1) = 345 мм.
Получив
диаметр барабана, принимаем по ГОСТу 8338-75 ближайший больший стандартный D =
350 мм.
Определим
длину барабана L, мм:
, (6)
где H = 17 м –
высота подъёма груза;
m = 4 –
кратность полиспаста;
D = 0,373 м –
диаметр барабана по центру каната;
t = 25 мм –
шаг нарезки поверхности барабана;
м.
Толщина
стенки чугунного барабана δ, см приближённо определяется по эмпирической
формуле:
δ =
0,02·D+1, (7)
где D = 373
мм = 37,3 см – диаметр барабана;
δ = 0,02·37,3+1
= 1,75 см.
Сложное
напряжение от изгиба и кручения определяют по формуле:
, (8)
где Wб
– экваториальный момент сопротивления;
, (9)
где D1
= 0,35 м – наружный диаметр барабана по дну канавки под канатом;
D2
= D1-2·δ = 0,35 - 2·0,0175 = 0,315 м – внутренний диаметр барабана.
м3
Напряжение
сжатия определяется по формуле:
, (10)

Определим
допускаемое напряжение сжатия
,
кг/см2:
, (11)
где σ0
= 60 кг/см2 - предельное напряжение материала при данном напряжённом
состоянии; [2]
К = 4,25 –
коэффициент запаса прочности для чугунных барабанов;
кг/см2;
.
Выбираем
способ крепления конца каната на барабане с помощью наружных прижимных планок.
Так как диаметр каната меньше 31 мм, устанавливаем одну планку с двумя болтами.
Нормами
техники безопасности предусматривается не менее 1,5 дополнительных витка,
уменьшающих натяжение каната в месте крепления к барабану.
Натяжение
каната перед прижимной планкой Sкр, кН будет равно:
, (12)
где f = 0,11
- коэффициент трения между канатом и барабаном; [2]
α = 3·π
= 9,4245 - угол обхвата барабана дополнительными витками каната;
кН
1.4 Выбор
крюка и грузовой подвески
Грузозахватные
приспособления предназначены для захвата штучных и навалочных грузов при их
перегрузке кранами. Они должны обеспечивать надёжность, удержания груза на весу
и безопасную работу людей, сохранность груза и упаковки, быстрый захват и
освобождение груза.
Выбираем
однорогий крюк, изготовленный ковкой из материала Сталь 20Г. Выбираем заготовку
крюка – Заготовка крюка 17А ГОСТ 6627-74. Наибольшая грузоподъёмность крюка
(для 6М) – 20 т. Размеры:
D = 120 мм;
S = 90 мм;
L = 415 мм;
b = 75 мм;
d = 80 мм;
d1
= М64;
h = 115 мм;
l = 60 мм;
l1
= не менее 165 мм;
l2
= не менее 90 мм;
r = 20 мм;
r1
= 125 мм;
r2 =
r4 = 14 мм;
r3 =
62 мм;
r5
= 155 мм;
r6
= 84 мм;
Масса – не
более 37 кг.
Крюки
монтируют в обоймах. Выбираем крюковую подвеску с верхним расположением блоков.
Для
обеспечения требуемого натяжения каната крюковая подвеска должна обладать
достаточной массой. Масса подвески mп для стреловых кранов должна
составлять 3…8 % грузоподъёмности крана.
mп =
Q*0,05 = 20*0,05 = 1 т.
1.5 Выбор
двигателя, редуктора и тормоза механизма подъёма
Мощность
двигателя при установившемся движении Nдв, кВт определяется по
формуле:
, (13)
где Q = 20 т
=196,2 кН – вес поднимаемого груза;
= 4,2 м/мин - установившаяся
скорость подъёма груза;
η -
коэффициент полезного действия механизма подъёма.
η =
ηполис · ηмуфты · ηредук, (14)
где ηредук
= 0,96;
ηмуфты
= 0,99;
η = 0,84935
* 0,99 * 0,96 = 0,807;
кВт.
По каталогу
выбираем двигатель MTК В311-6. Его параметры:
Мощность на
валу Nдв = 14 кВт (при ПВ =15 %);
Число
оборотов двигателя в минуту n = 850 об/мин;
Максимальный
крутящий момент Mmax = 340 Н·м;
Момент
инерции Mmax = 0,210 кг·м2;
Масса mдв
= 115 кг.
Определим
скорость навивки каната на барабан
бар, м/с:
бар =
·m, (15)
где m = 4 –
передаточное отношение полиспаста;
м/с
Определим
число оборотов барабана nбар, об/мин:
(16)
где D = 350
мм = 0,35 м – диаметр барабана;
об/мин.
Определим
передаточное число между двигателем и барабаном i:
i = n/nбар; (17)
i = 850/15 = 57.

Рис. 2.
Выбранный редуктор Ц2-200
Выбираем
цилиндрический горизонтальный двухступенчатый редуктор Ц2-200. Первые ступени
редуктора – раздвоенные шевроны, вторые - косозубые. Твёрдость рабочих
поверхностей зубьев шестерён 40-45 HRC, колёс 260-290 HB. КПД редуктора ηредук
= 0,96.
Таблица 1
Размеры
редуктора Ц2-200
| Типоразмер редуктора |
aωб
|
aωт
|
A |
A1
|
B=B1
|
B2
|
B3
|
B4
|
L1
|
L2
|
L3
|
L4
|
| Ц2-200 |
150 |
100 |
210 |
285 |
260 |
167 |
- |
60 |
515 |
400 |
247 |
220 |
| Типоразмер редуктора |
L5
|
L6
|
L7
|
L8
|
L9
|
L10
|
H0
|
H |
H1
|
S |
dxn |
Масса, кг |
| Ц2-200 |
480 |
595 |
645 |
565 |
494 |
225 |
355 |
783 |
100 |
40 |
46x8 |
1650 |
|
|
|
|
|
|
|
|
|
|
|
|
|
|
|
|
|
|
|
|
|
|
|
|
|
Соединительные
муфты используют для постоянного соединения соосных валов с одновременной
компенсацией их незначительных угловых и радиальных смещений и иногда – с
улучшением динамических характеристик привода.
Выбираем
зубчатую муфту с разъёмной обоймой (тип I) по ГОСТ 5006—83. Номинальный
вращающий момент Mк = 1000 Н*м. Момент инерции = 0,05 кг*м3.
Масса не более 6,7 кг.
Определим
тормозной момент Mт, Н*м:
, (18)
где Kт =
1,5 – коэффициент запаса торможения, принимаемый в зависимости от режима
работы;
Mст.т.
– статический крутящий момент на тормозном валу при торможении, с учётом потерь
в механизме, способствующих удержанию груза;
iр
= 32,42 - действительное передаточное число редуктора;
Н·м.
Выбираем колодочный
тормоз серии ТКТГ с электрогидравлическим толкателем типа ТГМ.
Обозначение
тормоза ТКТГ-600.
Тормозной
момент = 500 н*м (кгс*м).
Отход колодки
= 1,75мм.
Масса тормоза
= 434 кг.
Тип толкателя
– Т-160 Б.
Усилие = 160 н
(кгс).
Ход = 60 мм.
2.
Расчёт
механизма передвижения
2.1
Общий расчёт
Расчет
механизмов передвижения заключается в определении сопротивлений передвижению
крана, выборе электродвигателей, редукторов, муфт и тормозов. Общее
сопротивление передвижению крана представляет собой сумму сопротивлений
, (19)
где
;



Сопротивление
передвижению от сил трения:
, (20)
где
- вес крана, кН;
Q- вес груза,
кН;
- удельное сопротивление движению,
.
кН.
Сопротивление
от ветровой нагрузки:
, (21)
где 
.
кН.
:
(22)
где 


кН.
2.2
Выбор двигателя, редуктора и тормоза механизма передвижения

(23)
кН
По каталогу
на двигатели выбираем двигатель ЯМЗ-236. Его параметры:
Мощность
номинальная 180/132 л.с./кВт
Частота
вращения коленчатого вала 2100 об/мин
Масса mдв
= 820 кг.
Передаточное
число механизма:
, (24)
где D-
наружный диаметр пневмошин, м;
n- частота
вращения вала электродвигателя, об/мин;
- скорость движения крана, м/с.

Выбираем
цилиндрический горизонтальный двухступенчатый редуктор Ц2-200. Первые ступени
редуктора – раздвоенные шевроны, вторые – косозубые. Твёрдость рабочих
поверхностей зубьев шестерён 40-45 HRC, колёс 260-290 HB. КПД редуктора ηредук
= 0,96.

Рис. 3.
Выбранный редуктор Ц2-200
Таблица 2
Размеры
редуктора Ц2-200
| Типоразмер редуктора |
aωб
|
aωт
|
A |
A1
|
B=B1
|
B2
|
B3
|
B4
|
L1
|
L2
|
L3
|
L4
|
| Ц2-200 |
150 |
100 |
210 |
285 |
260 |
167 |
- |
60 |
515 |
400 |
247 |
220 |
| Типоразмер редуктора |
L5
|
L6
|
L7
|
L8
|
L9
|
L10
|
H0
|
H |
H1
|
S |
dxn |
Масса, кг |
| Ц2-200 |
480 |
595 |
645 |
565 |
494 |
225 |
355 |
783 |
100 |
40 |
46x8 |
1650 |
|
|
|
|
|
|
|
|
|
|
|
|
|
|
|
|
|
|
|
|
|
|
|
|
|
Соединительные
муфты используют для постоянного соединения соосных валов с одновременной
компенсацией их незначительных угловых и радиальных смещений и иногда – с
улучшением динамических характеристик привода.
Выбираем
зубчатую муфту с разъёмной обоймой (тип I) по ГОСТ 5006—83. Номинальный
вращающий момент Mк = 1000 Н*м. Момент инерции = 0,05 кг*м3.
Масса не более 6,7 кг.
Момент
сопротивления при торможении механизма передвижения на валу двигателя Mст,
Н*м:
Mст
=
; (25)
Mст
=
Н*м,
Необходимый
момент, создаваемый тормозом замедления и остановки:
, (26)
кгс*м.
Выбираем
колодочный тормоз серии ТКТГ с электрогидравлическим толкателем типа ТГМ-80.
Обозначение
тормоза ТКТГ-400М.
Тормозной
момент = 150 дан*м (кгс*м).
Отход колодки
= 1,4 мм.
Масса тормоза
= 145 кг.
Тип толкателя
– ТГМ-80.
Усилие = 80
дан (кгс).
Ход = 50 мм.
3.
Расчёт
механизма вращения
3.1
Общий расчёт
Расчёт
механизма вращения включает: выбор типового опорно-поворотного устройства
(ОПУ); определение полного сопротивления вращению; выбор электродвигателя,
редуктора, тормоза.
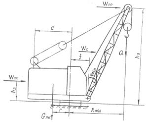
Расчёт
производится в положении минимального вылета при максимальном грузе (Рисунок 4).
Выбор ОПУ
производится по трём расчётным нагрузкам: вертикальной нагрузке G,
горизонтальной нагрузке Р, опрокидывающему моменту М.

Рис. 4. Схема
нагрузок, действующих на ОПУ
Вертикальная
нагрузка G, кН определяется как сумма всех действующих на ОПУ вертикальных
нагрузок:
G = Q + Gпк,
(27)
где Gпк
- вес поворотной части крана;
Gпк
= (0,55*Gк) =(0,55*204) = 112 кН
G = 196 + 112
= 308 кН.
Определим
горизонтальную нагрузку Р, кН:
Р = Wпк
+ Wс + Wгр + Рс*sin(φmin) +
G*sin(α), (28)
где Wс
= 4,6 кН - ветровая нагрузка на стрелу;
Wгр
= 0,4 кН - ветровая нагрузка на груз;
Рс
= 8 кН - горизонтальная составляющая реакции опоры стрелы;
Wпк
– ветровая нагрузка на торцевую часть крана;
Wпк
= p*Fс*Kспл, (29)
где p –
распределённая ветровая нагрузка на единицу расчётной площади, Н/м2;
p = qo*k*c*γ*β, (30)
где qo
= 25 Н/м2 – скоростной напор ветра на высоте 10 м от поверхности земли для умеренного характера ветра;
k = 1,5 –
поправочный коэффициент возрастания скоростного напора, для h = 20…30 м;
с = 1,2 –
аэродинамический коэффициент для кабин кранов;
γ = 1,1
– коэффициент перегрузки;
β = 1 –
коэффициент, учитывающий динамический характер приложения ветровой нагрузки;
p =
25*1,5*1,2*1,1*1 = 49,5 Н/м2; (31)
Fс
– наветренная площадь, 6,5;
Kспл
= 0,9 – коэффициент сплошности для кабины и механизмов крана;
Wпк
= 49,5*6,5*0,9 = 28,9 кН.
φmin
= 15о – угол наклона стрелы;
α = 1о30/
- угол наклона плоскости ОПУ к горизонту;
Р =28,9 + 4,1
+52,32 + 8*sin(15о) + 318*sin(1о30/) = 82,62
кН.
Определим
опрокидывающий момент относительно центра тел качения ОПУ М, кН:
, (32)
где Rmin
= 5 м – минимальный вылет;
h2
= 2 м;
h3
= 15 м;
r = 1 м – расстояние от центра тяжести поворотной части крана до оси вращения;
кН.
Момент
сопротивления вращению в период пуска относительно оси вращения:
Мвр
= Мукл + Мтр + Мв + Мин, (33)
где Мукл
– момент сопротивления вращению от веса поворотной части крана и груза при
нахождении крана на уклоне;
Мукл =
(-Gпк*r + Q*Rmin)*sin(α); (34)
Мукл =
(112*1 + 196*5)*sin(1о30/) = 18,1 кН*м;
Мтр
– момент сопротивления вращению от сил трения;
где μ =
0,005 – приведённый коэффициент трения качения для роликовых ОПУ;
k = 4 –
коэффициент, зависящий от типа ОПУ;
Dср
= 1,1 м – средний диаметр дорожки катания;
θ = 55о
– угол между направлением реакции тела качения и плоскостью, перпендикулярной
оси вращения;
Мв
– момент сопротивления вращению от ветровой нагрузки;
Мв
= Wгр*Rmin + Wc*rc + W/пк*r1
+ W//ПК*r2, (35)
где W/пк
= 127 кН – ветровая нагрузка на боковую часть крана, препятствующая вращению;
W//пк
= 159 кН – ветровая нагрузка на боковую часть крана, способствующая вращению;
rс
= (L/2)*sin(φmin) + f = 19/2*sin(15о) + 2,5 = 5 м; (36)
r1
= f/2 = 2,5/2 = 1,25 м;
r2
= c/2 = 3/2 = 1,5 м;
Мв
= 0,4*12,5 + 4,6*5 + 127*1,25 + 159*1,5 = 425,25 кН*м;
Мин
– момент сопротивления вращению от сил инерции;
, (37)
где n = 2,2 об/мин
– частота вращения поворотной части крана;
tn
= β/3*n = 30/3*2,2 = 4,5 с – время пуска механизма вращения;
β = 30о
– наибольший допустимый угол поворота при пуске;
I = 550 кг/м2
– момент инерции отдельных элементов поворотной части крана;
кН*м.
Мвр
= 18,1 + 10,2 + 425,25 + 28,1 = 481,7 кН*м.
Тогда
суммарный момент инерции от вращающихся частей пределяяется по формуле:
, (38)
где S = 4,5 м;
f = 2,5 м;
кН*м.

Рис. 5.
Расчётная схема для определения момента сопротивления вращению от ветровой
нагрузки
3.2 Выбор
двигателя, редуктора и тормоза механизма вращения
Мощность
электродвигателя механизма вращения
(39)
кН
По каталогу
на двигатели выбираем двигатель MTВ 312-6. Его параметры:
Мощность на
валу Nдв = 20 кВт (при ПВ = 15 %);
Число
оборотов двигателя в минуту n =955 об/мин;
Максимальный
крутящий момент Mmax = 620 Н*м;
Момент
инерции Mmax = 0.5 кг*м2;
Масса mдв
= 280 кг.
Общее
передаточное число механизма вращения:
, (40)


Рис. 6.
Выбранный редуктор Ц2-200
Выбираем
цилиндрический горизонтальный двухступенчатый редуктор Ц2-200. Первые ступени
редуктора – раздвоенные шевроны, вторые – косозубые. Твёрдость рабочих
поверхностей зубьев шестерён 40-45 HRC, колёс 260-290 HB. КПД редуктора ηредук
= 0,96.
Таблица 3
Размеры
редуктора Ц2-200
| Типоразмер редуктора |
aωб
|
aωт
|
A |
A1
|
B=B1
|
B2
|
B3
|
B4
|
L1
|
L2
|
L3
|
L4
|
| Ц2-200 |
150 |
100 |
210 |
285 |
260 |
167 |
- |
60 |
515 |
400 |
247 |
220 |
| Типоразмер редуктора |
L5
|
L6
|
L7
|
L8
|
L9
|
L10
|
H0
|
H |
H1
|
S |
dxn |
Масса, кг |
| Ц2-200 |
480 |
595 |
645 |
565 |
494 |
225 |
355 |
783 |
100 |
40 |
46x8 |
1650 |
|
|
|
|
|
|
|
|
|
|
|
|
|
|
|
|
|
|
|
|
|
|
|
|
|
Соединительные
муфты используют для постоянного соединения соосных валов с одновременной
компенсацией их незначительных угловых и радиальных смещений и иногда – с
улучшением динамических характеристик привода.
Выбираем
зубчатую муфту с разъёмной обоймой (тип I) по ГОСТ 5006—83. Номинальный
вращающий момент Mк = 1000 Н*м. Момент инерции = 0,05 кг*м3.
Масса не более 6,7 кг.
Момент
торможения на валу двигателя Mст, Н*м:
Mст
=
; (41)
Mст
=
Н*м,
Необходимый
момент, создаваемый тормозом замедления и остановки:
, (42)
кгс*м.
Выбираем
колодочный тормоз серии ТКТГ с электрогидравлическим толкателем типа ТГМ-80.
Обозначение
тормоза ТКТГ-400М.
Тормозной
момент = 150 дан*м (кгс*м).
Отход колодки
= 1,4 мм.
Масса тормоза
= 145 кг.
Тип толкателя
– ТГМ-80.
Усилие = 80
дан (кгс).
Ход = 50 мм.
4.
Расчёт
механизма изменения вылета стрелы
4.1 Общий
расчёт
Расчёт
механизма изменения вылета стрелы заключается в определении длины стрелы,
кратности стрелового полиспаста, выборе стальных канатов для полиспаста и
растяжек, определении размеров блоков и барабана лебёдки, выборе
электродвигателя, редуктора и тормоза.
Определим
опрокидывающий момент при минимальном вылете М0:
М0ПР
= Qmax* (Rmin - b) + Gc* (L / 2* sin(φmax)
+ f - b), (43)
где Gc
= (0,05…0,06)*Qmax = 0,055*12 = 0,67 т – вес стрелы;
М0
= 196000 * (5 – 3) + 0,385*(21/2 * 0,9962 + 1,2 - 3) = 24002 Н*м.

Рис. 7.
Грузовая характеристика крана

Рис. 8. Схема
стрелоподъёмного механизма при различных вылетах.

Рис. 9. Схема
подвески стрелы
Определим
ветровую нагрузку на груз:
Wгр
= p*Fгр, (44)
где p –
распределённая ветровая нагрузка на единицу расчётной площади груза, Н/м2;
p = qo*k*c*γ*β,
(45)
где qo
= 25 Н/м2 – скоростной напор ветра на высоте 10 м от поверхности земли для умеренного характера ветра;
k = 1,32 –
поправочный коэффициент возрастания скоростного напора, для h = 10…20 м;
с = 1,2 –
аэродинамический коэффициент;
γ = 1,1
– коэффициент перегрузки;
β = 1 –
коэффициент, учитывающий динамический характер приложения ветровой нагрузки;
p =
25*1,32*1,2*1,1*1 = 43,6 Н/м2;
Fгр
= 12 м2 – расчётная площадь груза для Q = 12т;
Wгр
= 43,6*12 = 523,2 Н.
Определим
ветровую нагрузку на стрелу:
Wс
= p*Fс*Kспл, (46)
где p -
распределённая ветровая нагрузка на единицу расчётной площади стрелы, Н/м2;
p = qo*k*c*γ*β,
(47)
где qo
= 25 Н/м2 – скоростной напор ветра на высоте 10 м от поверхности земли для умеренного характера ветра;
k = 1,32 –
поправочный коэффициент возрастания скоростного напора, для h =10…20 м;
с = 1,4 –
аэродинамический коэффициент;
γ = 1,1
– коэффициент перегрузки;
β = 1 –
коэффициент, учитывающий динамический характер приложения ветровой нагрузки;
p = 25*1,32*1,4*1,1*1
= 51 Н/м2;
Fс
– наветренная площадь стрелы;
Fс
= φ*Fб, (48)
где φ =
0,3 – коэффициент заполнения;
Fб
= L*bс = 1,9*0,4 = 0,76 м2,
где bс
= 0,4 – ширина стрелы;
Fс
= 0,3*0,76 = 0,228 м2;
Kспл
= 0,35 – коэффициент сплошности;
Wс
= 51*0,228*0,35 = 4,1 кН.
Определим
центробежную силу от массы груза:
,
(49)
где n = 2,2
об/мин - частота вращения поворотной платформы крана;
R = 14 м -
вылет;
Н.
Определим
центробежную силу от массы груза:
,
(50)
где rc
= 7 м - расстояние от оси вращения до центра тяжести стрелы;
Н.

Рис. 10.
Многоугольник сил для определения Snmax
Определим
усилие в ветви стрелового полиспаста Sб, кН:
;
(51)
кН.
Определим
усилие в растяжке Sp, кН:
, (52)
где К = 2 –
количество растяжек;
кН.
Определим
скорость наматывания каната на барабан vбс:
, (53)
где (Т1-Т2)
= 0,7 м - величина сокращения стрелового полиспаста;
tив
= 50 с - время изменения вылета;
м/с.
4.2 Выбор
двигателя, редуктора и тормоза механизма изменения вылета стрелы
Мощность
двигателя механизма изменения вылета Nдв, кВт определяется по
формуле:
, (54)
где
бс = 0,014 м/с –
установившаяся скорость изменения вылета;
η =
0,9314 – коэффициент полезного действия механизма.
кВт.
По каталогу
выбираем двигатель MTКО11-6. Его параметры:
Мощность на
валу Nдв = 1,1 кВт (при ПВ = 40 %);
Число
оборотов двигателя в минуту n = 885 об/мин;
Максимальный
крутящий момент Mmax = 42 Н*м;
Момент
инерции Mmax = 0,02 кг*м2; масса mдв = 47 кг.
Находим
момент статического сопротивления при торможении механизма на валу двигателя Mст,
Н*м:
(55)
Mст
=31*0,35*0,9314/2*8,32 = 63,2 Н*м.
Выбираем
цилиндрический горизонтальный двухступенчатый редуктор Ц2-200. Первые ступени
редуктора – раздвоенные шевроны, вторые – косозубые. Твёрдость рабочих поверхностей
зубьев шестерён 40-45 HRC, колёс 260-290 HB. КПД редуктора ηредук
= 0,96.

Рис. 11.
Выбранный редуктор Ц2-200
Таблица 4
Размеры
редуктора Ц2-200
| Типоразмер редуктора |
aωб
|
aωт
|
A |
A1
|
B=B1
|
B2
|
B3
|
B4
|
L1
|
L2
|
L3
|
L4
|
| Ц2-200 |
150 |
100 |
210 |
285 |
260 |
167 |
- |
60 |
515 |
400 |
247 |
220 |
| Типоразмер редуктора |
L5
|
L6
|
L7
|
L8
|
L9
|
L10
|
H0
|
H |
H1
|
S |
dxn |
Масса, кг |
| Ц2-200 |
480 |
595 |
645 |
565 |
494 |
225 |
355 |
783 |
100 |
40 |
46x8 |
1650 |
|
|
|
|
|
|
|
|
|
|
|
|
|
|
|
|
|
|
|
|
|
|
|
|
|
Соединительные
муфты используют для постоянного соединения соосных валов с одновременной
компенсацией их незначительных угловых и радиальных смещений и иногда – с
улучшением динамических характеристик привода.
Выбираем
зубчатую муфту с разъёмной обоймой (тип I) по ГОСТ 5006—83. Номинальный
вращающий момент Mк = 1000 Н*м. Момент инерции = 0,05 кг*м3.
Масса не более 6,7 кг.
Определим
тормозной момент Mт, Н*м:
, (56)
где Kт =
1,5 – коэффициент запаса торможения, принимаемый в зависимости от режима
работы;
Mст.т.
– статический крутящий момент на тормозном валу при торможении, с учётом потерь
в механизме, способствующих удержанию груза;
кгс*м.
Выбираем
колодочный тормоз серии ТКТГ с электрогидравлическим толкателем типа ТГМ-80.
Обозначение
тормоза ТКТГ-400 М.
Тормозной
момент = 150 дан*м (кгс*м).
Отход колодки
= 1,4 мм.
Масса тормоза
= 145 кг.
Тип толкателя
– ТГМ-80.
Усилие = 80
дан (кгс).
Ход = 50 мм.
5.
Расчёт
устойчивости крана
Автомобильные
краны – являются свободно стоящими, устойчивость которых против опрокидывания
обеспечивается только их собственным весом. Кроме веса крана, веса поднимаемого
груза и веса грузозахватного приспособления на кран воздействуют различные
внешние нагрузки:
- инерционные
силы, возникающие в периоды пуска или торможения механизмов крана (грузовая и
стреловая лебедки; механизмы поворота крана);
- ветровая
нагрузка, воздействующая на груз, корпус крана, стрелу;
- центробежные
силы, возникающие при вращении поворотной части крана.

Рис. 12.
Схемы расчета грузовой (а) и собственной (б) устойчивости стрелового крана
Величины
моментов действующих сил зависят от угла наклона площадки, на которой стоит
кран, положения стрелы и груза. Совместное действие всех сил, неблагоприятно
влияющих на устойчивость крана, приводят к его опрокидыванию. Поэтому краны
проектируют так, чтобы при любых условиях как в рабочем, так и в нерабочем
состоянии была обеспечена их устойчивость. В расчетах при определении
устойчивости крана различают грузовую и собственную устойчивость. Степень
устойчивости крана определяется коэффициентом грузовой устойчивости
и коэффициентом собственной устойчивости
.
Коэффициент
грузовой устойчивости:
(57)
где 


















через точки
опорного контура, м;
c- Расстояние
от центра тяжести крана до оси его вращения, м;
H- расстояние
от головки стрелы до центра тяжести подвешенного груза при его наинизшем
положении, м;










Собственная
устойчивость крана проверяется в нерабочем состоянии без груза при установке
крана без выносных опор, поэтому угол наклона площадки 3°. При расчете ветровой
нагрузки динамическое давление ветра принимается для нерабочего состояния 0,45
кПа.
Коэффициент
собственной устойчивости:
(58)

6. Техника
безопасности
В этом
разделе должны быть освещены вопросы безопасности эксплуатации, характерные для
данной машины. Здесь нельзя ограничиваться только общими требованиями, есть
правила, касающиеся именно этого класса машин, или же область применения данной
машины может «диктовать» свои условия ее безопасной эксплуатации.
Грузоподъемные
машины предназначены для перемещения различных грузов по сложной
пространственной траектории и относятся к оборудованию повышенной опасности.
Части
грузоподъёмных кранов, которые в процессе эксплуатации могут явиться источником
опасности для работающих, находящихся на кране или в зоне его действия, а также
представляющих опасность при транспортировании крана, окрашивают чередующимися
полосами жёлтого и чёрного цветов. Допускается предупреждающая окраска частей
стреловых самоходных кранов, перемещающихся по автомобильным дорогам, выполнять
в виде полос белого и красного цветов. Полосы одинаковой ширины размером 30...
150 мм наносят под углом 45...60°.
Предупреждающей
окраской покрывают: корпус крюковой подвески; жёсткие грузозахватные органы;
головку стрелы на длине 40...200 см (кроме стрел башенных кранов); части
подвижного противовеса, расположенные на высоте до 2 метров от уровня стоянки
крана или площадки, на которой могут находиться люди; элементы поворотной
платформы, выступающие за габариты неповоротной части, расположенные на высоте
до 2 метров от уровня стоянки края или площадки, на которой могут находиться
люди; боковые части, выступающие за боковую часть крана стрелового типа,
перемещающегося по наземному пути; выносные опоры; кабину и внешние элементы
ходовой части кранов мостового типа.
Безаварийная
и безопасная работа грузоподъемных кранов при производстве
строительно-монтажных и погрузочно- разгрузочных работ зависит, прежде всего,
от выполнения требований, предъявляемых к их эксплуатации и квалификации
обслуживающего персонала
Несчастные
случаи происходят вследствие нарушений требований инструкций машинистами и
такелажниками.
К основным
организационным и техническим причинам аварий и несчастных случаев при
эксплуатации кранов относятся: допуск к управлению и строповке рабочих, не
прошедших специального обучения и инструктажа; отсутствие или неисправность
приборов безопасности и предохранительных устройств; использование
несоответствующих и некачественных съёмных приспособлений и тары; неисправность
подкрановых путей и неподготовленность площадок для установки и передвижения
стреловых кранов; неправильная строповка конструкций и укладка грузов;
отсутствие ограждения зон монтажа и работы крана; отсутствие схем строповки или
их несоответствие; отсутствие замыкающих устройств на крюках грузозахватных
приспособлений; нарушение производственной дисциплины и требований правил при
работе в охранных зонах линий электропередач (ЛЭП); отсутствие проектов
производства работ или их несоответствие требованиям техники безопасности. Для
обеспечения содержания грузоподъёмных кранов и съёмных грузозахватных
приспособлений в исправном состоянии и создание безопасных условий для их
работы администрация организации-владельца крана назначает приказом из числа
инженерно-технических работников лиц, ответственных за исправное состояние
грузоподъёмных кранов и съёмных грузозахватных приспособлений. Эти же люди
осуществляют надзор за безопасной эксплуатацией грузоподъёмных кранов и
проводят их техническое освидетельствование. Они обязаны обеспечить каждый
грузоподъёмный кран табличкой с указанием максимальной грузоподъёмности крана в
зависимости от высоты башни, длины стрелы, вылета и установки дополнительных
опор, знаками безопасности, предупредительными надписями: «Не стой под
стрелой», «Не стой под грузом», а башенные краны - контрольными грузами для
проверки работы ограничителя массы груза и испытанными инвентарными
грузозахватными приспособлениями.
Администрация
организации, выполняющей строительно-монтажные работы на каждом объекте, где
используются грузоподъёмные краны, назначает лиц, ответственных за безопасное
производство работ по перемещению грузов кранами. Этими лицами могут быть
начальники строительных участков, производители работ, мастера участков,
начальники смен, сменные мастера. Ответственные лица назначаются приказом по
организации (предприятию).
Администрация
строительной организации обеспечивает безопасное производство работ в охранной
зоне линии электропередачи; своевременно прекращает работу кранов при силе
ветра более допустимой, вывешивает в кабинах башенных кранов на местах работ
списки перемещаемых кранами грузов с указанием их массы и выдаёт такелажникам
на руки или вывешивает на месте работ графические изображения способов
правильной обвязки и зацепки перемещаемых грузов, устанавливает нормы
заполнения тары грузами.
Машинисты
башенных и стреловых самоходных кранов с электрическим приводом механизмов
должны иметь квалификационную группу по технике безопасности не ниже второй.
При управлении автомобильным краном машинист должен иметь, кроме того, права
водителя автомобиля.
С целью
своевременного выявления и устранения неисправностей (дефектов) и
предупреждения поломок, которые в процессе эксплуатации могут привести к аварии
или к несчастному случаю, грузоподъёмные краны, грузозахватные органы и
приспособления подвергаются до пуска в работу полному техническому освидетельствованию,
а находящиеся в работе - периодическому техническому освидетельствованию и
осмотру. В соответствии с требованиями правил Ростехнадзора, грузоподъёмные краны
подвергаются частичному периодическому техническому освидетельствованию не реже
одного раза в год, а полному - не реже одного раза в три года.
Внеочередное
полное техническое освидетельствование грузоподъёмного крана производится после
монтажа, вызванного перебазировкой крана на новое место, после ремонта
металлоконструкций, установки нового сменного стрелового оборудования, замены
крюка.
Съёмные
грузозахватные приспособления в процессе эксплуатации подвергаются техническому
осмотру: траверсы - через каждые 6 месяцев; клещи и другие захваты - через 1
месяц; стропы - через каждые 10 дней. Редко используемые съёмные грузозахватные
приспособления осматривают перед выдачей их в работу.
Крюки
грузозахватных приспособлений должны быть кованные или штампованные и иметь
клеймо с указанием завода-изготовителя о допустимой грузоподъёмности.
Поверхности
деталей крепления (крюка, петли, кольца, серьги), имеющие трещины и заусенцы, к
работе не допускаются, а заварка дефектов на них запрещается.
Съёмные
грузозахватные приспособления снабжаются клеймом или прочно прикреплённой
металлической биркой с указанием его номера, грузоподъёмности и даты испытания.
Грузоподъёмность стропов общего назначения указывается при угле между ветвями
90°.
Тара,
предназначенная для перемещения мелкоштучных грузов и сыпучих материалов
грузоподъёмными кранами, подвергается осмотру. Испытывать тару грузом
необязательно. На таре указывается её назначение, номер, собственный и
предельный вес груза, для транспортирования которого она предназначена.
Вместимость тары должна исключать возможность перегрузки крана.
Сроки и
порядок осмотра тары устанавливаются администрацией строительной организации
или предприятия. Результаты технического освидетельствования и осмотра кранов,
съёмных грузозахватных приспособлений и тары заносятся в журнал (книгу) их
учёта (регистрации) и осмотра. Грузоподъёмные краны, съёмные грузозахватные
приспособления и тара, не прошедшие технического освидетельствования или с
просроченным сроком периодического испытания, к работе не допускаются.
Забракованные съёмные грузозахватные приспособления, а также грузозахватные
приспособления, не имеющие бирок (клейм), не маркированная и повреждённая тара
не должны находиться в местах производства работ.
В целях
предотвращения несчастных случаев, поломок и аварий грузоподъёмных кранов
запрещается:
-
пользоваться изношенными, неисправными, не имеющими клейма или бирки (надписи о
грузоподъёмности), а также с просроченными сроками испытаний съёмными
грузозахватными приспособлениями и тарой;
- подвешивать
груз, масса которого превышает грузоподъёмность крана на данном вылете. Если
масса предназначенного для подъёма груза неизвестна, поднимать его нельзя;
- освобождать
при помощи крана грузы, засыпанные землёй, снегом, примерзшие к земле конструкции
и оборудование, привёрнутые болтами или залитые бетоном, защемлённые грузом
грузозахватные приспособления, т.к. это приводит к недопустимой перегрузке
крана, которая в большинстве случаев заканчивается поломкой или аварией;
- поднимать
железобетонные изделия с повреждёнными монтажными петлями;
- подавать
материалы в оконные и дверные проёмы, если они не имеют грузоподъёмных
(разгрузочных) площадок, а также подавать больший по габариту груз, чем эти
площадки. Грузоподъёмные площадки должны иметь ограждения и располагаться в
шахматном порядке по фасаду здания;
- перемещать
груз над людьми, жилыми, служебными и производственными зданиями, если нет на
это письменного разрешения администрации строительства (предприятия);
- разгружать
груз на временные перекрытия, непосредственно на трубы паро- и газопроводов или
электрические кабели, а также прислонять к заборам и стенам временных строений;
- удерживать
или поправлять соскальзывающие с груза канаты или цепи грузозахватных
приспособлений. Обнаружив соскальзывание, следует подать сигнал на опускание
груза, после чего исправить обвязку;
-
устанавливать кран в охранной зоне линии электропередачи без наряда-допуска, а
при наличии его производить подъём и перемещение груза в отсутствие лица,
ответственного за безопасное производство работ.
Для
предотвращения аварийных ситуаций спроектированный кран необходимо обеспечить
всевозможными приборами и устройствами безопасности:
Ограничителями
высоты подъема груза, предупредительными приборами, ограничителями
грузоподъемности, хода стрелы, креномером, молниеотводом, и т.д.
Специальная
часть
Безопасная
установка крана на объекте
Площадка, на
которую устанавливают кран, должна быть спланирована и иметь уклон не более 3
градусов. В зимнее время площадку необходимо внимательно осматривать и удалять
с нее рыхлый снег, куски льда и мерзлой земли. На площадке не должны находиться
посторонние предметы.
При установке
крана на выносные опоры необходимо наблюдать за правильным их положением и
надежным опиранием на грунт. Не допускается работа крана на трех или двух
опорах.
При опирании
выносных опор на насыпной грунт под них необходимо подкладывать широкие и
прочные подкладки, препятствующие проседанию грунта под опорами.
После
установки крана, до начала грузовых операций, необходимо убедиться в устойчивом
положении опор и невозможности их скольжения по грунту, а также произвести
контрольный осмотр крана для проверки его готовности к работе.
Если при
осмотре не обнаружено дефектов, влияющих на безопасную работу крана, то об этом
делается запись в сменном журнале и после получения инструктажа и
производственного задания машинист крана приступает к работе на объекте
эксплуатации.
Производство
работ краном осуществляется с соблюдением требований, изложенных в инструкции
по эксплуатации и проекте производства работ
Проектирование
установки грузоподъемных машин на объектах ремонта должно предусматривать:
- соответствие
устанавливаемых кранов по грузоподъемности Q (т), высоте подъема крюка Я (м) и
вылету стрелы (м) условиям производства работ;
- обеспечение
безопасных расстояний от кранов до воздушных электрических сетей, мест движения
городского транспорта и пешеходов, а также до строений и штабелей материалов на
складских площадках;
- условия
установки и работы кранов вблизи котлованов;
- безопасную
работу двух и более кранов на одном объекте;
- перечень
применяемых грузозахватных приспособлений и графическое изображение способов
строповки грузов, не имеющих специальных устройств, петель, цапф и рымов, а
также схемы строповки грузов, имеющих такие устройства;
- места и
габариты складирования грузов, подъездные пути и т. п.;
- мероприятия
по безопасному производству работ на участке, где установлен кран (ограждение
строительной площадки, монтажной зоны, подкрановых путей и т. п.).
Безопасная
установка крана вблизи котлована
Если башенный
кран устанавливают у котлована для выполнения работ по устройству фундаментов и
стен подвала здания, то расстояние по горизонтали между краем дна котлована и
основание балластной призмы кранового пути должно быть для песчаных и
супесчаных грунтов не менее полуторной глубины котлована плюс 400 мм, для
глинистых грунтов – не менее глубины котлована плюс 400 мм.
Устанавливать
стреловой кран на краю откоса траншеи или котлована можно при соблюдении
расстояний. При невозможности соблюдения этих расстояний откос должен быть
укреплен.
Таблица 5
Зависимость
расстояние от основания откоса до ближайшей опоры от глубины котлована и грунта
|
Глубина
котлована, м
|
Грунт насыпной |
| Песчанный |
Супесчанный |
Суглинистый |
Глинистый |
Лёсс |
|
| Расстояние от основания откоса до
ближайшей опоры, м |
| 1 |
1,5 |
1,25 |
1,0 |
1,0 |
1,0 |
| 2 |
3 |
2,4 |
2,0 |
1,5 |
2,0 |
| 3 |
4 |
3,6 |
3,25 |
1,75 |
2,5 |
| 4 |
5,6 |
4,4 |
4,0 |
3,0 |
3,0 |
| 5 |
6,0 |
5,3 |
4,75 |
3,5 |
3,5 |
Графическое
изображение установки крана вблизи котлована показано в приложении А.
Заключение
В настоящее
время создано огромное разнообразие грузоподъёмных машин, как общего, так и
специального назначения.
Специализированные
проектные организации совместно с машиностротельными заводами создали ряд
высокопроизводительных, экономичных и удобных в эксплуатации машин и устройств
для механизации погрузочно-разгрузочных работ. Созданы электро- и
автопогрузчики, различные погрузочные машины для штучных и сыпучих грузов,
штабелирующие и другие подъёмные средства, позволяющие осуществлять комплексную
механизацию на многих участках предприятий чёрной и цветной металлургии,
машиностроительной, угольной, химической промышленности, железнодорожных и транспортных
перевозках, строительно-монтажных работах и др.
Многообразие
грузов, различающихся по форме, габаритам, массе, физико-механическим
свойствам; климатические, технологические условия, обеспечение безопасных и
комфортных условий труда - всё это диктует продуманный и обоснованный подход к
проектированию новой или модернизации существующей модели грузоподъёмной
машины.
Основными
тенденциями развития подъёмно-транспортного машиностроения являются:
- создание
качественно новых видов подъёмно-транспортных машин и механизмов, а также
широкая модернизация существующих машин и установок для обеспечения механизации
и автоматизации погрузочно-разгрузочных, транспортных и складских работ во всех
областях народного хозяйства;
- повышение
грузоподъёмности и надёжности машин при одновременном значительном снижении их
металлоёмкости благодаря применении новых кинематических схем, более
совершенных методой расчёт использованию рациональных облегчённых профилей
проката, новых материалов (легированные стали, лёгкие сплавы и пластмассы), а
также прогрессивной технологии машиностроения (новые методы термообработки,
нанесение упрочняющих покрытий и др.). Отметим, что надёжность - это понятие
комплексное. Оно включает в себя не только безопасность и долговечность, но и
ремонтопригодность и сохраняемость, т.е. свойства, определяющие эффективность
использования техники в заданных условиях эксплуатации;
- увеличиение
производительности оборудования вследствие применения широкого регулирования
скоростей механизмов, автоматического, полуавтоматического и дистанционного
управления с использованием микропроцессорной и электронно-вычислительной
техники, как для управления работой машин, так и для расчётов и проектирования;
создание специальных захватных и других подъёмных агрегатов, а также улучшений
условий труда крановщиков благодаря применению установок для охлаждения и
очистки воздуха в кабинах и других мероприятий.
Современное
производство подъёмно-транспортных машин основывается на создании блочных
конструкций, позволяющих получить высокий технико-экономический эффект при
изготовлении и эксплуатации этих машин.
В настоящее
время принцип блочности используется не только в механизмах, но и в
металлоконструкциях, что позволяет организовать поточные линии для серийного
изготовления унифицированных сборочных единиц металлоконструкций с соблюдением
возможности их взаимозаменяемости.
Соблюдая
принцип унификации и блочности при разработке конструкций грузоподъёмных машин,
обращают внимание на взаимное расположение механизмов и их сменных элементов,
которое должно обеспечивать удобство монтажа, обслуживания и регулировки с
возможно меньшей разборкой элементов; удобство подхода к тормозам, местам
креплений канатов, подшипникам, муфтам, зубчатым передачам, устройствам
безопасности.
Список
использованной литературы
1.
Глушков
Ю.П. Курсовое проектирование грузоподъемных машин: Учеб. Пособие. - Чита:
ЧитГУ, 2006. – 147 с.
2.
Александров
М.П. Подъемно-транспортные машины. Изд. 4-е. Учебник для вузов. - М.: Высшая
школа, 1972. – 504 с. с илл.
3.
Невзоров
Л.А., Пазельский Н.Г. Строительные башенные краны серии КБ. Справочник. – М.:
Машиностроение, 1971. – 352 с.